Casa indipendente in vendita a Rolo

Reggio nell'emilia (RE), Rolo

Visita Virtuale 3D

Descrizione immobile

Rif. A619 ROLO – Elegante casa indipendente con ampio giardino
Nel cuore di una zona residenziale tranquilla e ben servita, proponiamo in vendita una splendida abitazione indipendente completamente ristrutturata nel 2024, rifinita con cura e materiali di pregio, con impianto idrico e termosanitario ed impianto elettrico nuovi.
La casa, in classe energetica B e dotata di riscaldamento a pavimento, offre spazi ampi e ben distribuiti: 3 camere matrimoniali, 3 bagni moderni, garage doppio, lavanderia, cantina e uno spettacolare giardino privato, perfetto per momenti di relax o per accogliere amici e famiglia.

Un'opportunità unica per chi cerca comfort, efficienza e indipendenza, senza rinunciare allo stile e alla qualità.

Per ulteriori informazioni contattaci al numero fisso 0522-140-7801 o allo 0522-140-7920. Ci trovi in Corso Giuseppe Mazzini 28/C, nel cuore del centro storico di Correggio sotto l'orologio

Riferimento annuncio: A619

Desideri conoscere gratuitamente il valore della tua attuale abitazione?
un consulente a te dedicato ti darà tutte le informazioni che necessiti senza alcun impegno.
Chiamaci!

Caratteristiche principali

 Giardino: Privato
 Posto auto: Box
 Stato: Ristrutturato di Recente
 Numero livelli: 2
 Ingresso: Indipendente
 Classe Immobile: Civile
 Cucina: Abitabile
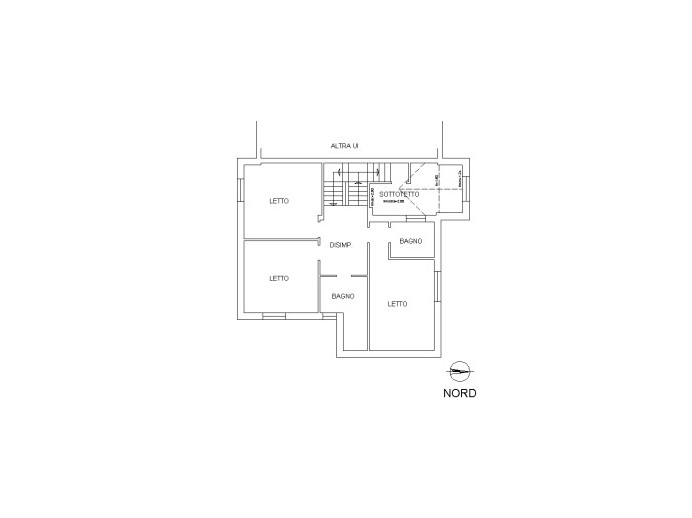
 Camere: 3
 Bagni: 3
 Arredamento: Parzialmente arredato
 Lati Liberi: Tre

L'immobile è vicino a...

Aeroporti: Parma Airport (83.4 km)
Ospedali: Centro di Salute Mentale (14.8 km)
Casa della Salute (15.0 km)
Ospedale San Sebastiano Correggio (16.2 km)
Scuole: Scuola Primaria E. De Amicis (1.0 km)
Cà rotta (8.4 km)
Istituto Comprensivo Moglia - Scuola Primaria (9.0 km)
CSF - ISTITUTO PRIVATO FERMI | LICEO SPORTIVO PARITARIO | SEDE DI CARPI (14.4 km)
Institute of Higher Education I. S. Strozzi (14.6 km)
State Technical Institute A. Meucci Of Carpi Mo (14.7 km)
Università: University of Modena and Reggio Emilia (43.5 km)
Veterinari: Lodi Cinzia (644 m)
Negozi: Bellesia Massimo (186 m)
Vintage Auto Beauty Caros 808 (209 m)
Sigma (415 m)
Forno Nasi (601 m)
Bar e ristoranti: X Cafe Snc Di Annovi Cristian E Motta Laura (496 m)
AL LEON DORO Caffe & Cucina (504 m)
Mi Piace gelateria, ,caffetteria (507 m)
Stefano Covino - Pizzeria (511 m)
Portale dei Soli (542 m)
Cinema e teatri: Cinema Castello Fabbrico (4.7 km)
Esterno Notte (11.5 km)
Fermate autobus: Fabbrico - Fortinella (2.0 km)
Fabbrico - Incrocio Via Rocca Falcona (3.6 km)
Stazioni treno: Rolo Novi Fabbrico (1.6 km)
Villanova di Reggiolo (4.4 km)
Parcheggi: Parcheggio Via Roma (578 m)
Parcheggio casello Reggiolo Rolo (4.5 km)

Planimetrie

Video

Prestazione Energetica

 
B
 
 
 
 
 
Riscaldamento: Autonomo
Tipo riscaldamento: A pavimento
Alimentazione: Gas

Ti interessa questo immobile?

Richiedi informazioni

Ho letto, compreso e accettato i termini e condizioni.

Calcola rata del mutuo

%
70%
rata

Immobili simili

Rif: A668
Villa indipendente

Casa Indipendente in Ven...

Rolo

  • 238mq
  • 7
  • 2
Rif. A668  in una posizione tranquilla e riservata, proponiamo ampia villetta indipendente da ristrutturare, caratterizzata da metrature generose e da un enorme potenziale di valorizzazio. . .
Rif: A633
Villa abbinata

Casa Indipendente in Ven...

Rolo

  • 139mq
  • 3
  • 1
Rif. A633 villetta libera su 3 lati – luce, spazio e indipendenza per la tua famiglia!in una zona tranquilla e riservata, proponiamo incantevole villetta a schiera libera su tre lati, cir. . .
Rif: A640
Abitazione indipendente

Casa Indipendente in Ven...

Rolo

  • 140mq
  • 3
  • 2
Rif. A640 casa indipendente a rolo – spazio, comfort e versatilità in zona tranquilla e comoda ai servizi, proponiamo una splendida casa indipendente, perfetta per chi cerca ambienti ampi e. . .
Rif: A656
Casa indipendente

Casa Indipendente in Ven...

Rolo

  • 116mq
  • 2
  • 1
rif. A656casa indipendente libera su quattro lati, sviluppata interamente al piano terra. L’abitazione è composta da disimpegno di ingresso, dal quale si accede al bagno, alle due camere. . .
Rif: A648
Casa indipendente con terreno

Casa Indipendente in Ven...

Rolo

  • 30299mq
  • 3
  • 2
Rif. A648   immersa in un paesaggio rurale di rara bellezza, dove il silenzio è interrotto solo dai suoni della natura, questa proprietà rappresenta una vera oasi di pace e autenti. . .