Casa indipendente in vendita a Rolo

Reggio nell'emilia (RE), Rolo

Visita Virtuale 3D

Descrizione immobile

Rif. A633 Villetta libera su 3 lati – luce, spazio e indipendenza per la tua famiglia!

In una zona tranquilla e riservata, proponiamo incantevole villetta a schiera libera su tre lati, circondata da un giardino privato curato che regala privacy e relax in ogni momento della giornata.

L’abitazione si distingue per gli ambienti luminosi e accoglienti: la zona giorno comprende un ampio soggiorno con accesso diretto a un bel terrazzo vivibile, perfetto per pranzi all’aperto o momenti di relax, e una cucina abitabile spaziosa e luminosa.

La zona notte ospita tre camere da letto confortevoli e un bagno finestrato curato nei dettagli.
Al piano terra, una grande cantina offre ampio spazio per taverna, palestra o locale hobby.
Al secondo piano, una soffitta molto grande e luminosa si presta a essere personalizzata come studio, sala giochi o camera aggiuntiva.

Grazie alla tripla esposizione, la casa gode di luce naturale per tutto il giorno, con ambienti ariosi e una piacevole sensazione di benessere.

Una soluzione ideale per chi cerca l’indipendenza di una casa libera su tre lati, con giardino, terrazzo e ampi spazi da vivere in piena libertà.
Perfetta per famiglie o coppie che sognano una casa calda, accogliente e piena di luce.

Per ulteriori informazioni contattaci al numero fisso 0522-140-7801 o allo 0522-140-7920. Ci trovi in Corso Giuseppe Mazzini 28/C, nel cuore del centro storico di Correggio sotto l'orologio

Riferimento annuncio: A633

Desideri conoscere gratuitamente il valore della tua attuale abitazione?
un consulente a te dedicato ti darà tutte le informazioni che necessiti senza alcun impegno.
Chiamaci!


Caratteristiche principali

 Giardino: Privato
 Stato: Buono
 Ingresso: Indipendente
 Classe Immobile: Civile
 Cucina: Abitabile
 Camere: 3
 Bagni: 1
 Arredamento: Parzialmente arredato
 Lati Liberi: Tre

L'immobile è vicino a...

Aeroporti: Parma Airport (82.9 km)
Ospedali: Centro di Salute Mentale (15.6 km)
Casa della Salute (15.7 km)
Ospedale Montecchi di Suzzara (18.2 km)
Scuole: Scuola Primaria E. De Amicis (1.7 km)
Istituto Comprensivo Moglia - Scuola Primaria (8.9 km)
Cà rotta (9.1 km)
Institute of Higher Education I. S. Strozzi (14.2 km)
CSF - ISTITUTO PRIVATO FERMI | LICEO SPORTIVO PARITARIO | SEDE DI CARPI (15.2 km)
State Technical Institute A. Meucci Of Carpi Mo (15.5 km)
Università: University of Modena and Reggio Emilia (43.0 km)
Veterinari: Lodi Cinzia (545 m)
Negozi: Forno Nasi (502 m)
Sigma (548 m)
Bellesia Massimo (829 m)
Bar e ristoranti: Portale dei Soli (335 m)
X Cafe Snc Di Annovi Cristian E Motta Laura (397 m)
AL LEON DORO Caffe & Cucina (405 m)
Mi Piace gelateria, ,caffetteria (408 m)
Stefano Covino - Pizzeria (412 m)
Cinema e teatri: Cinema Castello Fabbrico (5.5 km)
Esterno Notte (11.1 km)
Fermate autobus: Fabbrico - Fortinella (2.8 km)
Fabbrico - Incrocio Via Rocca Falcona (4.4 km)
Stazioni treno: Rolo Novi Fabbrico (1.5 km)
Villanova di Reggiolo (4.0 km)
Parcheggi: Parcheggio Via Roma (479 m)
Parcheggio casello Reggiolo Rolo (4.1 km)

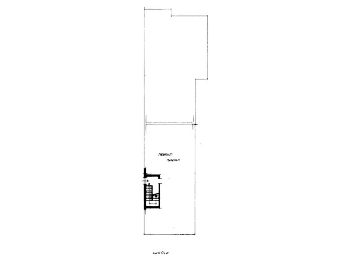
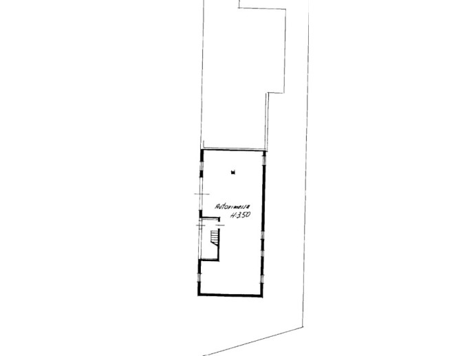
Planimetrie

Video

Prestazione Energetica

 
 
 
 
 
 
G
Riscaldamento: Autonomo
Tipo riscaldamento: Radiatori
Alimentazione: Metano

Ti interessa questo immobile?

Richiedi informazioni

Ho letto, compreso e accettato i termini e condizioni.

Calcola rata del mutuo

%
70%
rata

Immobili simili

Rif: A684
Abitazione indipendente con te

Casa Indipendente in Ven...

Rolo

  • 378mq
  • 3
  • 2
Rif. A684  immersa nella tranquilla campagna di rolo, proponiamo elegante abitazione indipendente costruita nel 2020, caratterizzata da finiture di qualità e classe energetica a2, ideale. . .
Rif: A656
Casa indipendente

Casa Indipendente in Ven...

Rolo

  • 116mq
  • 2
  • 1
rif. A656casa indipendente libera su quattro lati, sviluppata interamente al piano terra. L’abitazione è composta da disimpegno di ingresso, dal quale si accede al bagno, alle due camere. . .
Rif: A640
Abitazione indipendente

Casa Indipendente in Ven...

Rolo

  • 140mq
  • 3
  • 2
Rif. A640 casa indipendente a rolo – spazio, comfort e versatilità in zona tranquilla e comoda ai servizi, proponiamo una splendida casa indipendente, perfetta per chi cerca ambienti ampi e. . .
Rif: A648
Casa indipendente con terreno

Casa Indipendente in Ven...

Rolo

  • 30299mq
  • 3
  • 2
Rif. A648   immersa in un paesaggio rurale di rara bellezza, dove il silenzio è interrotto solo dai suoni della natura, questa proprietà rappresenta una vera oasi di pace e autenti. . .
Rif: A619
Casa indipendente

Casa Indipendente in Ven...

Rolo

  • 209mq
  • 3
  • 3
Rif. A619 rolo – elegante casa indipendente con ampio giardino nel cuore di una zona residenziale tranquilla e ben servita, proponiamo in vendita una splendida abitazione indipendente compl. . .