Appartamento in vendita a Guastalla

Reggio nell'emilia (RE), Guastalla

Visita Virtuale 3D

Descrizione immobile

CLICCA SU VIRTUAL TOUR PER VISIONARE L'IMMOBILE DIRETTAMENTE DA CASA TUA !

San Quirino Immobiliare - Sede di Guastalla propone posizione centrale a Guastalla, all’interno di un condominio degli anni ’70 composto da nove unità abitative, proponiamo un appartamento situato al secondo piano di tre, soluzione che garantisce un buon livello di comfort e risparmio energetico.
Il contesto è stato recentemente riqualificato tramite interventi del Superbonus 110%, con installazione del cappotto termico, nuovi infissi in PVC, tapparelle, impianto fotovoltaico e altri aggiornamenti mirati a migliorare l’efficienza complessiva.

L’abitazione è stata oggetto di una ristrutturazione interna nei primi anni 2000, durante la quale sono stati rinnovati pavimenti, porte interne, bagno e impianto elettrico.
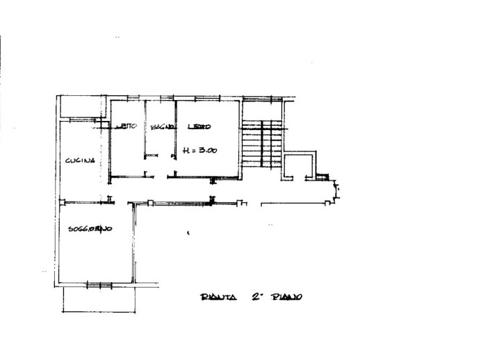
L’ingresso, ampio e sviluppato in lunghezza, accompagna verso la cucina semi-abitabile dotata di portafinestra con accesso al primo balcone.
Separata da un muretto si apre la zona giorno, spaziosa e luminosa, anch’essa servita da portafinestra che conduce a un secondo balcone più ampio, ideale per momenti di relax all’aperto.

Il disimpegno notte garantisce privacy rispetto agli ambienti principali e conduce alla camera matrimoniale, alla camera singola e al bagno finestrato, comodo e funzionale, provvisto di attacchi per la lavatrice.
Gli infissi, in PVC effetto legno, sono di ultima generazione e dotati di triplo movimento vasistas, assicurando un eccellente isolamento termico ed acustico.

Completano la proprietà una soffitta al quarto ed ultimo piano, perfetta come spazio di deposito, e un garage al piano terra, elemento particolarmente prezioso nel centro storico, già predisposto con allaccio per la ricarica tramite pannelli fotovoltaici.
Per una valutazione gratuita della tua abitazione o per maggiori informazioni su come valorizzare il tuo immobile, contattaci senza impegno. Il nostro consulente dedicato sarà lieto di assisterti e fornirti tutte le informazioni necessarie.
Prenota ora una visita chiamando al numero: 0522 1309888 o vieni a trovarci presso il nostro ufficio in Via Gonzaga 8/E, nel cuore del centro storico di Guastalla.

Riferimento Immobile: AG419.

Caratteristiche principali

 Posto auto: Box
 Stato: Buono
 Numero livelli: 1
 Ingresso: Condominiale
 Classe Immobile: Civile
 Ascensore: Si
 Spese condominiali: 1500€ annui
 Cucina: Semi abitabile
 Camere: 2
 Bagni: 1
 Piano: 2° piano di 3° piano
 Arredamento: Parzialmente arredato
 Lati Liberi: Due, paralleli

L'immobile è vicino a...

Aeroporti: Parma Airport (40.7 km)
Ospedali: Arca Del Fiume (2.6 km)
Casa della Salute (13.3 km)
Ospedale Montecchi di Suzzara (13.5 km)
Scuole: Scuola Elementare (1.3 km)
IIS Bertrand Russell Guastalla (2.2 km)
Scuola Elementare (4.6 km)
Scuola Primaria “San Martino” (4.6 km)
Institute of Higher Education I. S. Strozzi (13.0 km)
Istituto Manzoni (14.2 km)
Università: University of Modena and Reggio Emilia (56.8 km)
Negozi: Ottica Occhio Per Occhio (165 m)
Erboristeria Magia Verde (169 m)
Torrcaffé (172 m)
中式生魚片餐廳 (546 m)
Largo dei mille,9 (757 m)
Bar e ristoranti: Hamza king pizzeria e kebab (143 m)
Il Sorpasso (498 m)
Pizzeria Via e Vai (535 m)
Reggio (756 m)
Bar Hollywood (771 m)
Caffè Bahia (1.3 km)
Quintopiano Home Restaurant (1.4 km)
Cinema e teatri: Cinema Teatro Comunale di Dosolo (6.3 km)
Cinecentrum Gualtieri (7.6 km)
Fermate autobus: Guastalla (1.6 km)
Guastalla (2.1 km)
Stazioni treno: Tagliata (3.3 km)
Parcheggi: Parcheggio Piazza Della Repubblica (187 m)
parcheggio delle poste (245 m)

Planimetrie

Video

Prestazione Energetica

 
 
 
 
E
 
 
Riscaldamento: Centralizzato
Tipo riscaldamento: Radiatori
Alimentazione: Metano

Ti interessa questo immobile?

Richiedi informazioni

Ho letto, compreso e accettato i termini e condizioni.

Calcola rata del mutuo

%
70%
rata

Immobili simili

Rif: AG437
Appartamento ristrutturato con

Appartamento in Vendita

Guastalla

  • 100mq
  • 3
  • 1
San quirino immobiliare – sede di guastalla propone in vendita ampio appartamento quadrilocale con doppia autorimessa, situato in tranquillo quartiere residenziale chiuso al traffico, ideale. . .
Rif: AG435
Ampio trilocale con travi a vi

Appartamento in Vendita

Guastalla - Tagliata

  • 122mq
  • 2
  • 1
San quirino immobiliare presenta, in elegante contesto condominiale dei primi anni 2000, servito da ascensore e curato nelle parti comuni, un affascinante appartamento mansardato situato al te. . .
Rif: AG432
Monolocale vicino al centro

Appartamento in Vendita

Guastalla

  • 82mq
  • 1
  • 1
San quirino immobiliare, sede di guastalla, è lieta di presentare un’interessante opportunità a guastalla, nella ricercata zona di baccanello. A pochi passi dal centro storico e dai princi. . .
Rif: AG344
Trilocale in centro storico

Appartamento in Vendita

Guastalla

  • 95mq
  • 2
  • 1
San quirino immobiliare di guastalla, propone in vendita ampio trilocale in centro storico. In posizione centrale e servita, proponiamo in vendita un ampio e luminoso trilocale situato al terzo. . .
Rif: AG376
Appartamento al primo piano in

Appartamento in Vendita

Guastalla

  • 99mq
  • 2
  • 1
San quirino immobiliare - sede di guastalla propone in esclusiva un elegante appartamento situato nella zona più ricercata del paese, più precisamente in località nizzola, rinomata per la s. . .