Appartamento in vendita a Guastalla

Reggio nell'emilia (RE), Guastalla

Visita Virtuale 3D

Descrizione immobile

San Quirino Immobiliare – Sede di Guastalla propone in vendita un appartamento situato in via Ariosto, a pochi passi dal centro di Guastalla.

L’immobile si trova all’ultimo piano (senza ascensore) di una palazzina composta da poche unità abitative, ideale per chi cerca tranquillità e riservatezza.

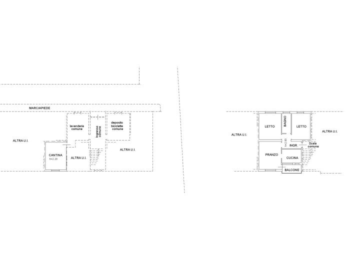
All’ingresso troviamo un disimpegno che separa la zona giorno dalla zona notte:

cucina abitabile e separata dal soggiorno,

due camere da letto di comode dimensioni,

un bagno che completa la soluzione di circa 77 mq.

L’appartamento dispone inoltre di un balcone, accessibile dal soggiorno, perfetto sia per stendere che per trascorrere momenti all’aria aperta.

Al piano terra sono presenti le pertinenze: una spaziosa cantina e un garage che rendono la proposta ancora più completa.

Per una valutazione gratuita della tua abitazione o per maggiori informazioni su come valorizzare il tuo immobile, contattaci senza impegno.
Il nostro consulente dedicato sarà lieto di assisterti e fornirti tutte le informazioni necessarie.

Prenota ora una visita chiamando al numero: 0522 1309888 o vieni a trovarci presso il nostro ufficio in Via Gonzaga 8/E, nel cuore del centro storico di Guastalla.

Riferimento Immobile: AG410.


Caratteristiche principali

 Giardino: Comune
 Posto auto: Box
 Stato: Buono
 Numero livelli: 1
 Ingresso: Condominiale
 Classe Immobile: Economica
 Spese condominiali: 1100€ annui
 Cucina: Semi abitabile
 Camere: 2
 Bagni: 1
 Piano: 2° piano di 2° piano
 Arredamento: Non arredato
 Lati Liberi: Due, paralleli

L'immobile è vicino a...

Aeroporti: Parma Airport (36.9 km)
Ospedali: Arca Del Fiume (1.9 km)
Casa della Salute (11.8 km)
Amplifon Via Europa, Suzzara (15.8 km)
Scuole: Scuola Elementare (759 m)
IIS Bertrand Russell Guastalla (1.2 km)
Scuola Elementare (3.1 km)
Scuola Primaria “San Martino” (3.1 km)
IIS San Giovanni Bosco (13.3 km)
Institute of Higher Education I. S. Strozzi (13.6 km)
Università: University of Modena and Reggio Emilia (57.7 km)
Veterinari: Surgery Veterinarian Dr. Ruina Matteo (950 m)
Negozi: Zanardi Paolo (210 m)
Forno Pasticceria BB (465 m)
Conad Superstore - Supermarket (993 m)
中式生魚片餐廳 (1.3 km)
AGAVE eventsolution (1.9 km)
Bar e ristoranti: Ristorante Le Vie del Gusto · Guastalla (RE) (118 m)
Pizzeria Franco & Miki (308 m)
Laguna (351 m)
LORIENTE GUASTALLA (469 m)
Bar Hollywood (1.6 km)
Bar Campanon (1.8 km)
Cinema e teatri: Cinecentrum Gualtieri (5.8 km)
Cinema Teatro Comunale di Dosolo (6.9 km)
Fermate autobus: Guastalla (512 m)
Guastalla (793 m)
Stazioni treno: Gualtieri (3.5 km)
Parcheggi: Parcheggio EX-Ospedale (495 m)
Parcheggio Piazza Giacomo Matteotti (1.8 km)

Planimetrie

Video

Prestazione Energetica

 
 
 
 
 
 
G
Riscaldamento: Autonomo
Tipo riscaldamento: Radiatori
Alimentazione: Metano

Ti interessa questo immobile?

Richiedi informazioni

Ho letto, compreso e accettato i termini e condizioni.

Calcola rata del mutuo

%
70%
rata

Immobili simili

Rif: AG399
Appartamento spazioso e curato

Appartamento in Vendita

Guastalla

  • 106mq
  • 2
  • 1
Se stai cercando un luogo che unisca spazi generosi, atmosfera accogliente e cura nei dettagli, questo appartamento è quello che fa per te.  situato all’ultimo piano di un tranquillo co. . .
Rif: AG344
Trilocale in centro storico

Appartamento in Vendita

Guastalla

  • 95mq
  • 2
  • 1
San quirino immobiliare di guastalla, propone in vendita ampio trilocale in centro storico. In posizione centrale e servita, proponiamo in vendita un ampio e luminoso trilocale situato al terzo. . .
Rif: AG362
Appartamento con due terrazzi

Appartamento in Vendita

Guastalla - Pieve

  • 101mq
  • 2
  • 1
Clicca su virtual tour per un esperienza immersiva!san quirino immobiliare di guastalla propone in vendita un ampio e luminoso trilocale situato nella rinomata zona pieve, in una posizione str. . .
Rif: AG375
Appartamento con terrazzo in z

Appartamento in Vendita

Guastalla

  • 51mq
  • 1
  • 1
San quirino immobiliare è lieta di proporre in vendita un accogliente e ben curato appartamento, situato nella zona pieve di guastalla, in posizione strategica a pochi passi da tutti i serviz. . .
Rif: AG277
Quadrilocale al terzo piano in

Appartamento in Vendita

Guastalla

  • 122mq
  • 3
  • 1
San quirino immobiliare di guastalla propone in vendita ampio quadrilocale nel cuore del centro storico di guastalla. (clicca su virtual tour per visionare l'immobile direttamente da casa tua!). . .