Appartamento duplex in vendita a Formigine

Modena (MO), Formigine

Visita Virtuale 3D

Descrizione immobile

San Quirino Formigine - cell 320.3065450 - formigine@sanquirinoimmobiliare.it 


Stai cercando una soluzione ristrutturata in zona centrale a Formigine ?


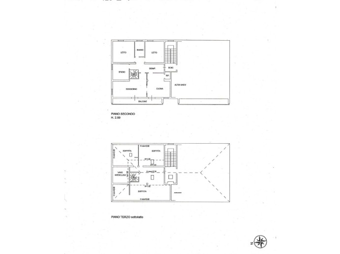
In quartiere comodo ai principali servizi e a pochi passi dal centro città, proponiamo un ampio appartamento al secondo piano ( no ascensore ) in scala di sole 4 unità abitative comp. da: ingresso su disimpegno con cucina abitabile, ampio soggiorno e balcone che collega i due ambienti; dis. notte con 2 camere matrimoniali, 1 camera singola e 1 bagno.

Al p. superiore, raggiungibile attraverso una rinnovata e giovanile scala a chiocciola, ampia mansarda da poter adibire a quarta camera / ambiente smart  o a un ambiente studio/sfogo di circa 40 mq con ulteriore bagno e zona lavanderia.

Al p.terra, auto-rimessa singola e cantina di proprietà.


I lavori di ristrutturazione hanno compreso anche impiantistica, caldaia e infissi, e risalgono al 2023. Classe energetica A. Cappotto esterno. Questa soluzione rappresenta una vera e propria chicca pronta a essere abitata da subito, in una zona vicina ai servizi e, soprattutto, al cuore pulsante di Formigine: il centro storico.


Nota: per offrirti un servizio su misura, le visite sugli immobili vengono organizzate solo dopo una consulenza preliminare in studio.

San Quirino Immobiliare sede di Formigine, ci trovi via Giardini Nord n. 4 

Visita il nostro sito www.sanquirinoimmobiliare.it

Caratteristiche principali

 Posto auto: Rimessa
 Stato: Ristrutturato di Recente
 Numero livelli: 2
 Ingresso: Condominiale
 Classe Immobile: Signorile
 Spese condominiali: 300€ annui
 Cucina: Abitabile
 Camere: 3
 Bagni: 1
 Piano: 2° piano di 3° piano
 Arredamento: Parzialmente arredato
 Lati Liberi: Tre

Planimetrie

Video

Prestazione Energetica

A
 
 
 
 
 
 
Riscaldamento: Autonomo
Tipo riscaldamento: A pavimento
Alimentazione: Energia elettrica (Pannelli fotovoltaici)

Ti interessa questo immobile?

Richiedi informazioni

Ho letto, compreso e accettato i termini e condizioni.

Calcola rata del mutuo

%
70%
rata

Immobili simili

Rif: F113
2 livelli a due passi dal cent

Appartamento Duplex in V...

Formigine

  • 147mq
  • 2
  • 2
San quirino formigine - cell 320. 3065450 - formigine@sanquirinoimmobiliare. It stai cercando una casa che ti regali spazi generosi, comfort e la comodità di avere tutti i servizi a portat. . .