Appartamento duplex in vendita a Formigine

Modena (MO), Formigine

Visita Virtuale 3D

Descrizione immobile

San Quirino Formigine - cell 320.3065450 - formigine@sanquirinoimmobiliare.it 

Stai cercando una casa che ti regali spazi generosi, comfort e la comodità di avere tutti i servizi a portata di mano?

A Formigine, in un quartiere servito e comodo al centro, ti proponiamo un appartamento accogliente e ben distribuito, inserito in una scala riservata di sole 6 unità (senza ascensore), dove tranquillità e privacy sono protagoniste.

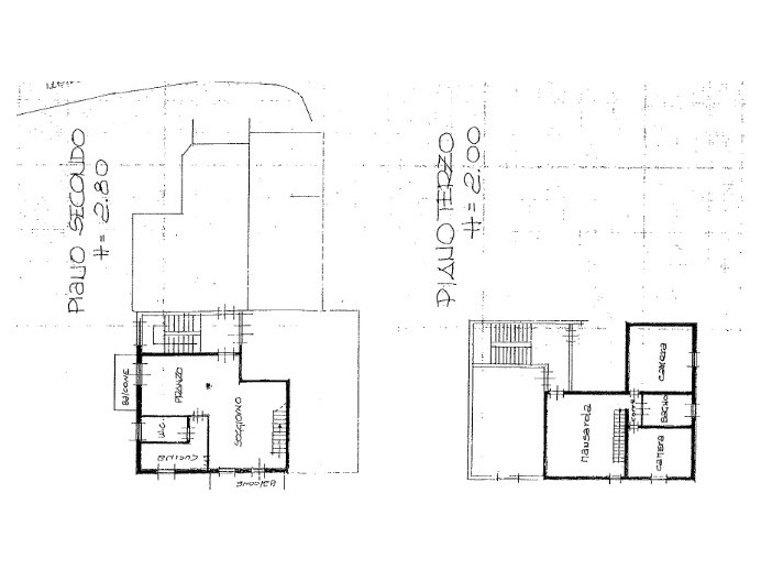
Salendo al secondo e ultimo piano, vieni accolto da un luminoso soggiorno con affaccio su un grazioso balcone, perfetto per concederti momenti di relax. Il cucinotto separato e il bagno completano il piano con funzionalità ed equilibrio.
Attraverso una comoda scala interna in legno, raggiungi il livello superiore, dove ti aspetta un’ampia soffitta suddivisa in tre ambienti, ideali da trasformare in camere, studio o spazio hobby, oltre a un secondo bagno che aggiunge praticità alla quotidianità.

Al piano interrato hai a disposizione una autorimessa singola di proprietà, un valore aggiunto irrinunciabile.

Da ricordare: l’immobile si presenta in buono stato di manutenzione, grazie agli interventi eseguiti nel tempo, ed è una soluzione che unisce spazio, posizione e convenienza. Un’occasione da cogliere.

Ora tocca a te: contattaci e vieni a scoprire dal vivo questa casa a Formigine. Potrebbe essere proprio quella che stavi aspettando.


Nota: per offrirti un servizio su misura, le visite agli immobili vengono organizzate solo dopo una consulenza preliminare in studio.


San Quirino Immobiliare sede di Formigine, ci trovi via Giardini Nord n. 4 

visita il nostro sito www.sanquirinoimmobiliare.it


Caratteristiche principali

 Giardino: Comune
 Posto auto: Rimessa
 Stato: Abitabile
 Numero livelli: 2
 Ingresso: Condominiale
 Classe Immobile: Medio signorile
 Spese condominiali: 600€ annui
 Cucina: Abitabile
 Camere: 2
 Bagni: 2
 Piano: 2° piano di 3° piano
 Arredamento: Non arredato

Planimetrie

Video

Prestazione Energetica

 
 
 
 
 
 
G
Riscaldamento: Autonomo
Tipo riscaldamento: Radiatori
Alimentazione: Metano

Ti interessa questo immobile?

Richiedi informazioni

Ho letto, compreso e accettato i termini e condizioni.

Calcola rata del mutuo

%
70%
rata

Immobili simili

Rif: F130
Appartamento su 2 livelli in z

Appartamento Duplex in V...

Formigine

  • 150mq
  • 3
  • 1
San quirino formigine - cell 320. 3065450 - formigine@sanquirinoimmobiliare. It stai cercando una soluzione ristrutturata in zona centrale a formigine ?in quartiere comodo ai principali ser. . .