Appartamento in vendita a Correggio

Reggio nell'emilia (RE), Correggio

Visita Virtuale 3D

Descrizione immobile

Rif. annuncio: A680 - filiale di CORREGGIO

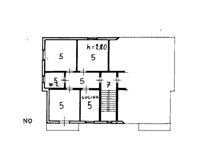
Nel cuore tranquillo di Fosdondo di Correggio, proponiamo un accogliente trilocale situato al terzo piano di una palazzina senza ascensore, ideale per chi cerca spazi comodi, riservatezza e il fascino di una casa da vivere con serenità ogni giorno.

L’ingresso accompagna in un’abitazione dai locali ben distribuiti, dove il soggiorno regala un’atmosfera calda e familiare, perfetta per i momenti di relax, mentre la cucina abitabile rappresenta il cuore della casa, uno spazio da condividere tra quotidianità e convivialità.

La zona notte offre due ampie camere da letto matrimoniali, pensate per garantire comfort, tranquillità e tutta la praticità necessaria a una famiglia, a una giovane coppia o a chi desidera ambienti generosi. Completa il piano il bagno.

A rendere ancora più interessante la proprietà troviamo diverse pertinenze esclusive: una soffitta di proprietà all’ultimo piano, perfetta come comodo spazio di deposito, e al piano terra cantina, lavanderia privata e giardino di proprietà, elementi sempre più ricercati che aggiungono funzionalità e valore all’immobile.

Una soluzione dal sapore autentico, inserita in un contesto tranquillo, perfetta per chi desidera una casa spaziosa e completa, in una frazione amata per la sua quiete e la vicinanza a Correggio.

Caratteristiche principali

 Giardino: Privato
 Stato: Buono
 Numero livelli: 1
 Ingresso: Condominiale
 Classe Immobile: Civile
 Spese condominiali: 100€ annui
 Cucina: Abitabile
 Camere: 2
 Bagni: 1
 Piano: 3° piano di 3° piano
 Arredamento: Non arredato
 Lati Liberi: Tre

Planimetrie

Video

Prestazione Energetica

 
 
 
 
 
 
G
Riscaldamento: Autonomo
Tipo riscaldamento: Radiatori
Alimentazione: Metano

Ti interessa questo immobile?

Richiedi informazioni

Ho letto, compreso e accettato i termini e condizioni.

Calcola rata del mutuo

%
70%
rata

Immobili simili

Rif: A586
Quadrilocale con due bagni ris

Appartamento in Vendita

Correggio - Correggio Città

  • 116mq
  • 3
  • 2
Appartamento ristrutturato – centro storico di correggiorif. A586in posizione centralissima, in viale battisti, proponiamo in vendita un luminoso appartamento ristrutturato, situato al 5° e. . .
Rif: A669
Bilocale al primo piano

Appartamento in Vendita

Correggio - Prato

  • 58mq
  • 1
  • 1
Rif. A669a prato di correggio, in zona particolarmente apprezzata per la vicinanza al polo industriale e alla comodità dei servizi, proponiamo in esclusiva bilocale posto al primo piano in pal. . .
Rif: A599
Bilocale seminuovo con terrazz

Appartamento in Vendita

Correggio - Correggio Città

  • 70mq
  • 1
  • 1
Rif. Annuncio: a599nel cuore della tranquilla zona leonardo di correggio, ti presentiamo un’opportunità che unisce comfort, stile e funzionalità. Varcata la soglia di questo elegante bilocal. . .
Rif: A655
Trilocale seminuovo

Appartamento in Vendita

Correggio - Correggio Città

  • 71mq
  • 2
  • 1
Rif. A655 san quirino immobiliare propone in esclusiva trilocale situato al primo piano di una palazzina recente edificata nel 2006, dotata di ascensore e caratterizzata da un contesto ord. . .
Rif: A538
Trilocale con due bagni

Appartamento in Vendita

Correggio - Correggio Città

  • 119mq
  • 2
  • 2
Rif. A538correggio – in ottima zona residenziale, proponiamo ampio trilocale posto al secondo ed ultimo piano di una palazzina di sole sei unità abitative, priva di ascensore. L’appartament. . .