Appartamento in vendita a Correggio

Reggio nell'emilia (RE), Correggio

Visita Virtuale 3D

Descrizione immobile

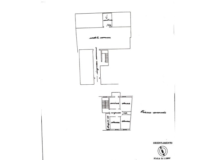
In tranquilla zona residenziale nel cuore del centro storico di Correggio, proponiamo esclusiva in vendita un ampio appartamento trilocale  posto al secondo piano senza ascensore, inserito in un piccolo contesto di sole sette unità abitative, con spese condominiali contenute.
L'appartamento si presenta in ottime condizioni e con finiture curate, spazioso e ben distribuito, accoglie con un ampio ingresso ed una luminosissima zona giorno composta da ampia sala e cucina abitabile separata, ideale per chi ama la convivialità e gli spazi funzionali.
La zona notte comprende due camere matrimoniali di generose dimensioni ed un bagno completamente ristrutturato nel 2017 con materiali moderni e di qualità.
Completano la proprietà un ripostiglio sito in appartamento ed una cantina doppia al piano terra utilizzabile anche come un piccolo box auto visto il portone di ingresso ampio che garantisce praticità e comodità .
Inoltre ad uso dei condomini abbiamo un ampio cortile interno attrezzato.
Le utenze sono autonome, ad esclusione dell'acqua che è compresa nelle spese condominiali, infissi in legno e vetrocamera, tapparelle in PVC, zanzariere ed un balcone che dona luminosità e sfogo esterno alla sala. Il vantaggio più grande di questo immobile è che viene venduto completamente arredato con mobili seminuovi ed in chiave neutra e moderna.


Una soluzione ideale per chi cerca tranquillità, indipendenza e spazi ben vivibili, in una posizione comoda ai servizi al centro di Correggio.
Vuoi ricevere informazioni? Non esitare a contattarci al 0522 1407920 oppure passa a trovarci in ufficio, siamo in Corso Mazzini,28/c nel cuore del centro storico di Correggio, non dovrai fare altro che comunicarci il riferimento di questo annuncio ed un consulente sarà a tua disposizione!

Caratteristiche principali

 Stato: Buono
 Ingresso: Condominiale
 Classe Immobile: Civile
 Spese condominiali: 750€ annui
 Cucina: Abitabile
 Camere: 2
 Bagni: 1
 Arredamento: Arredato
 Lati Liberi: Due, paralleli

L'immobile è vicino a...

Aeroporti: Hotel Continental (61.5 km)
Ospedali: Bianalisi - Medical Center (18.8 km)
C.T.R. Therapy Rehabilitation Center Srl (20.5 km)
Centro di medicina Reggio Emilia Largo Giambellino (21.1 km)
Scuole: Filippo re (609 m)
State Primary School St. Francis of Assisi (1.4 km)
Scuola Primaria Statale G. Rodari - Cantona (1.5 km)
Scuola Primaria Antonio Allegri (2.2 km)
State Technical Institute A. Meucci Of Carpi Mo (9.3 km)
Team ZeroC (9.6 km)
Università: University of Modena and Reggio Emilia (24.7 km)
Veterinari: Lugli Dr.ssa Silvia Medico Veterinario (703 m)
Negozi: Frutta Viva (486 m)
Come a Casa (687 m)
KAUL ASIAN STORE DI LAL MADAN (726 m)
Antico Forno Benati (747 m)
Armadietti (793 m)
Bar e ristoranti: Pizzeria 1975 (155 m)
Caffè La Rocca (588 m)
Caffè Cavour 900 (657 m)
La Galera Correggio (724 m)
Pizzeria Napulé (750 m)
Cinema e teatri: Cinepiù - The cinema of Correggio (1.3 km)
Space City Multisala (9.1 km)
Fermate autobus: Correggio (1.1 km)
Correggio - Espansione Sud Inc. Via D. Chiesa (2.0 km)
Stazioni treno: S. Tomaso (8.5 km)
Pieverossa (8.6 km)
Parcheggi: Parcheggio interrato ligabue (594 m)
Parcheggio Piazza Vittorio Tondelli (648 m)

Planimetrie

Video

Prestazione Energetica

 
 
 
 
 
F
 
Riscaldamento: Autonomo
Tipo riscaldamento: Radiatori
Alimentazione: Metano

Ti interessa questo immobile?

Richiedi informazioni

Ho letto, compreso e accettato i termini e condizioni.

Calcola rata del mutuo

%
70%
rata

Immobili simili

Rif: A586
Quadrilocale con due bagni ris

Appartamento in Vendita

Correggio - Correggio Città

  • 116mq
  • 3
  • 2
Appartamento ristrutturato – centro storico di correggiorif. A586in posizione centralissima, in viale battisti, proponiamo in vendita un luminoso appartamento ristrutturato, situato al 5° e. . .
Rif: A272
Ampio trilocale in centro

Appartamento in Vendita

Correggio - Correggio Città

  • 100mq
  • 2
  • 1
Puoi acquistare questo immobile con una rata di mutuo pari a soli 469,85 €/mese, il prezzo di un canone di affitto!san quirino propone, in zona centralissima a correggio, un ampio trilocale. . .
Rif: A632
Trilocale con doppi servizi e

Appartamento in Vendita

Correggio - Budrio

  • 109mq
  • 2
  • 2
Rif. A 632in tranquilla zona residenziale di budrio, frazione di correggio, proponiamo esclusiva in vendita un ampio appartamento trilocale con doppi servizi, inserito in un piccolo contesto d. . .
Rif: A613
Quadrilocale al primo piano in

Appartamento in Vendita

Correggio - Canolo

  • 117mq
  • 3
  • 1
Appartamento con 3 camere, mansarda e garage a canolo (correggio)rif. A613 in tranquilla zona residenziale di canolo, frazione di correggio, proponiamo appartamento al primo piano in stile ru. . .
Rif: A615
Trilocale vicino al centro

Appartamento in Vendita

Correggio - Correggio Città

  • 108mq
  • 2
  • 1
Rif. A615 vivi la città, senza rinunciare alla comodità! a pochi passi dal centro, ti aspetta un appartamento al secondo piano che unisce spazio e funzionalità: luminoso soggiorno dove ril. . .