Appartamento in vendita a Viadana

Mantova (MN), Viadana

Visita Virtuale 3D

Descrizione immobile

Nel cuore di Viadana, in una posizione estremamente comoda a tutti i principali servizi del paese – scuole, farmacia, banche, negozi e attività raggiungibili comodamente a piedi – proponiamo in vendita appartamento al piano terra inserito in una palazzina curata dei primi anni 2000.

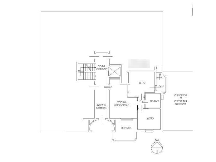
L’ingresso si apre su una luminosa zona giorno open space, dove soggiorno e cucina si fondono in un ambiente accogliente e funzionale, ideale per la vita quotidiana e per momenti di convivialità. Da qui si accede direttamente alla prima terrazza, uno spazio esterno perfetto per pranzi all’aperto, momenti di relax o per chi desidera uno sfogo pratico e vivibile.

La zona notte, ben distribuita, è composta da due camere da letto: ambienti comodi e versatili, ideali sia per una famiglia che per una coppia alla ricerca di uno studio o stanza aggiuntiva. Una delle camere gode dell’accesso diretto alla seconda terrazza, offrendo ulteriore privacy e uno spazio esterno riservato.

L’immobile si presenta con finiture tipiche dell’epoca di costruzione e dispone di:

Infissi in legno con doppio vetro Riscaldamento autonomo con termosifoni in ghisa Contesto condominiale tranquillo e ben abitato

La posizione al piano terra rende la soluzione particolarmente comoda e accessibile, ideale per chi desidera evitare scale o cerca praticità nella vita di tutti i giorni.

La soluzione non dispone di garage, ma la posizione centrale permette di avere tutti i servizi e le principali comodità a pochi passi da casa, riducendo la necessità di utilizzo dell’auto.

Soluzione perfetta per chi vuole vivere il centro con tutti i servizi a portata di mano, senza rinunciare a spazi esterni privati.

CONTATTI:
viadana@sanquirinoimmobiliare.it

0375930000

Caratteristiche principali

 Stato: Buono
 Classe Immobile: Economica
 Cucina: Abitabile
 Camere: 2
 Bagni: 1
 Piano: 3° piano
 Arredamento: Non arredato
 Lati Liberi: Quattro

Planimetrie

Video

Prestazione Energetica

 
 
 
 
 
F
 
Riscaldamento: Autonomo
Tipo riscaldamento: Radiatori
Alimentazione: Gas

Ti interessa questo immobile?

Richiedi informazioni

Ho letto, compreso e accettato i termini e condizioni.

Calcola rata del mutuo

%
70%
rata

Immobili simili

Rif: AV130
Bilocale da investimento a cog

Appartamento in Vendita

Viadana - Cogozzo

  • 60mq
  • 1
  • 1
Posizionesituato a cogozzo, frazione di viadana (mn), in un contesto residenziale tranquillo e curato. Caratteristiche dell’immobiletipologia: bilocalepiano: secondo piano con ascensoreanno d. . .
Rif: AV054
Av054 - appartamenti e negozi

Appartamento in Vendita

Viadana - Viadana Centro

  • 700mq
  • 3
  • 1
Oggi abbiamo un'offerta molto particolare, principalmente destinata ad investitori immobiliari e costruttori edili. Nella piccola frazione di cogozzo, a due minuti dal centro di viadana, vendes. . .
Rif: AV195
Occasione a cicognara: apparta

Appartamento in Vendita

Viadana - Cicognara

  • 97mq
  • 3
  • 2
Ci sono appartamenti che si visitano… e appartamenti che si sentono subito “casa”. Questa è una di quelle soluzioni che, appena varchi la porta, ti trasmette spazio, ordine e vivibilit. . .
Rif: AV089
Av089 - quadrilocale in centro

Appartamento in Vendita

Viadana

  • 141mq
  • 3
  • 1
Vieni a scoprire questa splendida opportunità! presentiamo un ampio quadrilocale situato nel cuore di viadana, ideale per chi cerca comodità e spazio. Posizione centrale: ubicato in una posiz. . .
Rif: AV186
Av186 - trilocale a piano terr

Appartamento in Vendita

Viadana - San Matteo Delle Chiaviche

  • 72mq
  • 2
  • 1
San quirino immobiliare propone in vendita appartamento trilocale posto al piano terra, situato a san matteo delle chiaviche, in contesto tranquillo e ordinato, ideale per chi cerca una soluzi. . .