Casa semi indipendente in vendita a Viadana

Mantova (MN), Viadana

Visita Virtuale 3D

Descrizione immobile

Nel cuore tranquillo di Buzzoletto di Viadana, proponiamo una casa indipendente degli anni ’60, solida, autentica, con tutto il fascino delle abitazioni di una volta e il grande vantaggio di poter essere trasformata secondo il proprio gusto.

La casa è abitabile, ma rappresenta soprattutto una vera opportunità per chi desidera acquistare a un buon prezzo e investire in una ristrutturazione su misura, valorizzando spazi e potenzialità.

Negli anni sono già stati eseguiti interventi importanti:
tetto, facciata e scuri sono stati rifatti, un ottimo punto di partenza che permette di concentrare i lavori sugli interni.

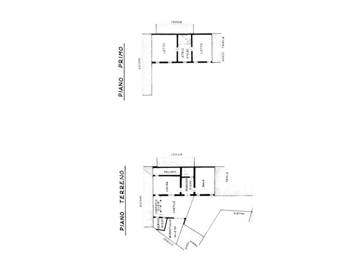
L’abitazione si sviluppa su due livelli:

al piano terra troviamo una sala accogliente, la cucina, un bagno e una camera,

al piano primo due camere da letto e un secondo bagno, ideali per una famiglia o per chi desidera ambienti ben separati.

Completano la proprietà un garage di pertinenza e un cortile privato, uno spazio prezioso da vivere nelle belle stagioni, per il relax o per chi ama il verde.

Una soluzione perfetta per chi cerca indipendenza, tranquillità e la libertà di creare la propria casa, partendo da una base solida e con un investimento intelligente.

Buzzoletto di Viadana – un’occasione da cogliere per chi guarda al potenziale, non solo all’apparenza.

Caratteristiche principali

 Giardino: Privato
 Posto auto: Si
 Stato: Abitabile
 Numero livelli: 2
 Ingresso: Indipendente
 Classe Immobile: Economica
 Cucina: Abitabile
 Camere: 3
 Bagni: 2
 Arredamento: Parzialmente arredato
 Lati Liberi: Due, paralleli

Planimetrie

Prestazione Energetica

 
 
 
 
 
 
G
Riscaldamento: Autonomo
Tipo riscaldamento: Radiatori
Alimentazione: Metano

Ti interessa questo immobile?

Richiedi informazioni

Ho letto, compreso e accettato i termini e condizioni.

Calcola rata del mutuo

%
70%
rata