Appartamento duplex in vendita a Scandiano

Reggio nell'emilia (RE), Scandiano

Visita Virtuale 3D

Descrizione immobile

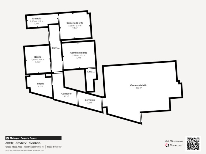
Nuovo quadrilocale – Classe A4 – 166 m²

In contesto residenziale tranquillo proponiamo splendido quadrilocale di nuova costruzione con ingresso indipendente e finiture moderne di alto livello.

Composizione:

• Ampia zona giorno open space con cucina e soggiorno

• Due camere matrimoniali, entrambe con cabina armadio

• Un bagno finestrato con doccia e un bagno con lavanderia

• Zona relax/studio al piano mansardato con terzo bagno

• Due posti auto coperti con predisposizione per ricarica auto elettrica

Dotazioni:

• Impianto fotovoltaico

• Riscaldamento a pavimento

• Classe energetica A4

• Finiture e mobilio di pregio 

Prezzo: € 388.000

Una casa moderna e sostenibile, perfetta per chi desidera comfort, efficienza e indipendenza.


Per ulteriori informazioni contattaci al numero 352-0139557 o allo 05221950145.

Email: rubiera@sanquirinoimmobiliare.it

Ci trovi a Rubiera (RE), in Via Emilia Est 2/C.




Caratteristiche principali

 Posto auto: Si
 Stato: Nuovo
 Numero livelli: 2
 Ingresso: Indipendente
 Classe Immobile: Civile
 Nuova Costruzione: Si
 Cucina: A vista
 Camere: 3
 Bagni: 3
 Piano: 1° piano di 2° piano
 Arredamento: Arredato
 Lati Liberi: Tre

L'immobile è vicino a...

Aeroporti: Hotel Continental (60.7 km)
Ospedali: Centro di medicina Reggio Emilia Largo Giambellino (15.9 km)
C.T.R. Therapy Rehabilitation Center Srl (16.1 km)
Fogliani Private Hospital (21.4 km)
Scuole: Scuola Primaria Rita Levi Montalcini (1.0 km)
St. Francis Elementary School 50 (3.4 km)
IISS Piero Gobetti (4.4 km)
Marmirolo Primary school (6.5 km)
Metis Lezioni Private a Sassuolo (13.6 km)
A. F. Formiggini (13.6 km)
Università: University of Modena and Reggio Emilia (21.9 km)
Veterinari: Ambulatorio Veterinario Dott Pelati (636 m)
Negozi: Punto Simply (241 m)
Supermercato Meta - Pam Panorama (244 m)
Fornaio Magnani (324 m)
Qualità Italiana S.r.l. (661 m)
Bar e ristoranti: Bar Del Centro (280 m)
Pizzeria LAngolo Arceto (329 m)
Bar Genpy (341 m)
Pizzeria Luna Rossa da Franco (876 m)
damatOsteria (933 m)
Caffetteria ex Cantina (1.2 km)
Granaio Del Conte (3.5 km)
Cinema e teatri: Il cordolino di corticella (5.1 km)
Cinema Teatro Boiardo (5.4 km)
Fermate autobus: Arceto (939 m)
San Donnino - Chiesa (3.6 km)
Stazioni treno: Chiozza (4.4 km)
Pratissolo (4.8 km)
Parcheggi: Parcheggio cimitero Scandiano (3.0 km)
Motoclub Scandiano (3.2 km)

Planimetrie

Prestazione Energetica

 
 
 
 
 
 
 
Riscaldamento: Autonomo
Tipo riscaldamento: A pavimento
Alimentazione: Metano

Ti interessa questo immobile?

Richiedi informazioni

Ho letto, compreso e accettato i termini e condizioni.

Calcola rata del mutuo

%
70%
rata