Casa indipendente in vendita a Sassuolo

Modena (MO), Sassuolo

Descrizione immobile

Rif S271 Bifamiliare di pregio nella zona più esclusiva di Sassuolo!

In una delle aree più ricercate e prestigiose di Sassuolo, proponiamo in vendita una splendida villa bifamiliare libera su 4 lati, ideale per chi cerca comfort, indipendenza e un investimento di valore.

L’immobile si compone di:
Piano terra: accogliente mini appartamento con 2 camere,  perfetto per ospiti, genitori o per uso investimento.
Primo piano: spazioso appartamento con ampio soggiorno, cucina abitabile, 3 camere da letto e 2 bagni, luminoso e con ottima distribuzione degli spazi.

Possibilità di creare un altro appartamento alzando l'ultimo piano.
Piano seminterrato: taverna, doppio garage e cantina, ideali per chi desidera spazio e funzionalità.

Completano la proprietà un giardino privato che circonda la casa su tutti e quattro i lati, garantendo privacy e tranquillità.

 Posizione impareggiabile: zona residenziale elegante, silenziosa, ma comoda a tutti i servizi principali.
 Soluzione perfetta per due nuclei familiari o per chi sogna una casa ampia, indipendente e con potenzialità edificatoria.


Per qualsiasi informazione potete contattarci allo 0536280037 o passare a trovarci in piazza martiri partigiani 81

Caratteristiche principali

 Giardino: Privato
 Posto auto: Box
 Stato: Buono
 Ingresso: Indipendente
 Classe Immobile: Signorile
 Cucina: Abitabile
 Camere: 4
 Bagni: 3
 Arredamento: Parzialmente arredato
 Lati Liberi: Quattro

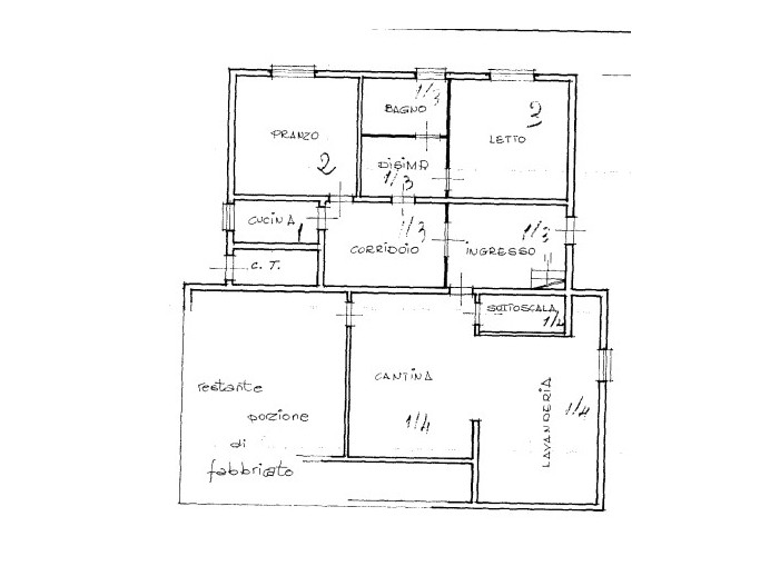
Planimetrie

Prestazione Energetica

 
 
 
 
E
 
 
Riscaldamento: Autonomo
Tipo riscaldamento: Radiatori
Alimentazione: Metano

Ti interessa questo immobile?

Richiedi informazioni

Ho letto, compreso e accettato i termini e condizioni.

Calcola rata del mutuo

%
70%
rata

Immobili simili

Rif: s151
Soluzione indipendente su quat

Casa Indipendente in Ven...

Sassuolo

  • 270mq
La san quirino immobiliare di sassuolo,  una soluzione indipendente da demolire o da ristrutturare , ideale per chi desidera costruire la casa dei propri sogni partendo da zero. Sulla solu. . .
Rif: S215
Villa bifamiliare in vendita a

Casa Indipendente in Ven...

Sassuolo

  • 576mq
  • 8
  • 4
Rif: s215la san quirino immobiliare di sassuolo sita piazza martiri partigiani n°81, propone in vendita una villa bifamiliare con annesso un terreno agricolo di circa 1700mq. La casa si dispon. . .
Rif: S218
Splendida villa in classe a4

Casa Indipendente in Ven...

Sassuolo - Montegibbio

  • 355mq
  • 5
  • 5
La san quirino immobiliare di sassuolo propone sulle suggestive prime colline di sassuolo, a 1,5 km dalla zona di pontenuovo,  un immobile davvero unico nel suo genere, pensato per chi de. . .
Rif: S195
Casa indipendente

Casa Indipendente in Ven...

Sassuolo

  • 305mq
  • 2
  • 2
La san quirino immobiliare di sassuolo, propone in vendita una splendida casa singola situata in una posizione tranquilla e comoda ai servizi. L'immobile è composto da due appartamen. . .