Appartamento in vendita a Sassuolo

Modena (MO), Sassuolo

Descrizione immobile

Rif S305
La san quirino di Sassuolo di piazza martiri partgiani 81 propone in vendita appartamento con spazi ampi e ambienti vivibili.

Situato al terzo piano servito da ascensore, in contesto residenziale tranquillo e di pregio, l’immobile offre le metrature generose tipiche delle costruzioni degli anni ’70, sempre più difficili da trovare nelle nuove costruzioni.

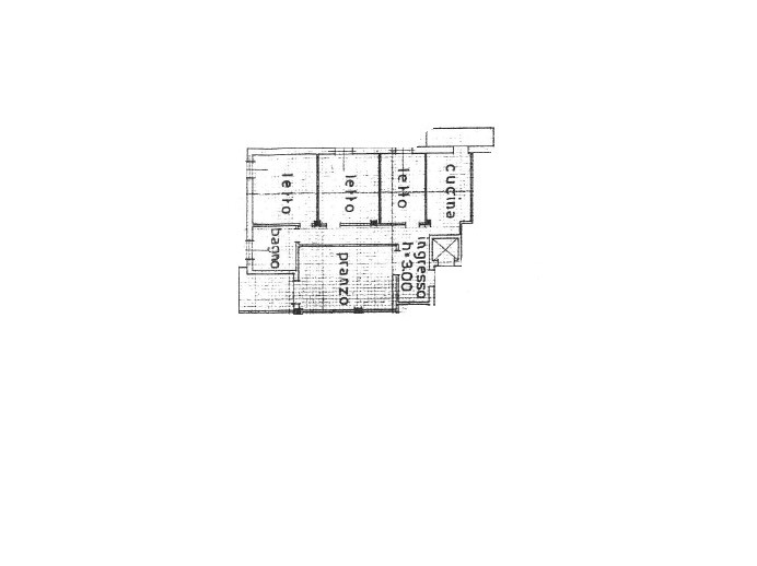
L’ingresso conduce ad un luminoso soggiorno, affiancato da una cucina separata con accesso al balcone, perfetto per momenti di relax all’aperto.

La zona notte è composta da:

tre camere da letto, ideali per famiglie o per chi desidera uno studio in casa

bagno

Completano la proprietà:

soffitta

cantina

garage

Una soluzione perfetta per chi cerca una casa spaziosa in una zona residenziale ricercata, con tutti i servizi facilmente raggiungibili.

Per maggiori informazioni puoi contattarci al numero 0536280037 o passaci a trovare in piazza martiri partigiani n.81

Caratteristiche principali

 Posto auto: Box
 Stato: Abitabile
 Ingresso: Condominiale
 Classe Immobile: Signorile
 Ascensore: Si
 Spese condominiali: 800€ annui
 Cucina: Abitabile
 Camere: 3
 Bagni: 1
 Arredamento: Non arredato
 Lati Liberi: Due, ad angolo

Planimetrie

Prestazione Energetica

 
 
 
 
 
 
G
Riscaldamento: Autonomo
Tipo riscaldamento: Radiatori
Alimentazione: Metano

Ti interessa questo immobile?

Richiedi informazioni

Ho letto, compreso e accettato i termini e condizioni.

Calcola rata del mutuo

%
70%
rata

Immobili simili

Rif: S245
Appartamento in vendita

Appartamento in Vendita

Sassuolo

  • 100mq
  • 2
  • 2
La san quirino immobiliare di sassuolo propone in vendita un bellissimo appartamento ristrutturato situato al piano terra di una palazzina servita. Caratteristiche principali: -ampio sogg. . .
Rif: s272
Quadrilocale in trifamiliare i

Appartamento in Vendita

Sassuolo

  • 124mq
  • 3
  • 1
La san quirino immobiliare di sassuolo propone in vendita in zona residenziale riservata e silenziosa, su strada chiusa e priva di traffico, proponiamo luminoso quadrilocale situato al primo p. . .
Rif: S274
Appartamento piano terra in ve

Appartamento in Vendita

Sassuolo

  • 95mq
  • 3
  • 1
Rif. S274 la san quirino immobiliare di sassuolo (piazza martiri partigiani, 81) propone in vendita appartamento al piano terra completamente ristrutturato in zona rometta. L'appartamento è co. . .
Rif: S309
Appartamento al quarto piano c

Appartamento in Vendita

Sassuolo

  • 115mq
  • 2
  • 1
La san quirino immobiliare di sassuolo propone in vendita un elegante appartamento situato al quarto piano di uno stabile servito da ascensore, ideale per chi cerca comfort, funzionalità e un. . .
Rif: S037
Appartamento con 2 ampi terraz

Appartamento in Vendita

Sassuolo

  • 130mq
  • 3
  • 1
Rif s037la san quirino immobiliare di sassuolo propone in vendita un ampio e luminoso appartamento situato al primo piano di un edificio con ascensore, in un contesto di recente costruzione d. . .