Appartamento in vendita a Sassuolo

Modena (MO), Sassuolo

Descrizione immobile

RIF. S279

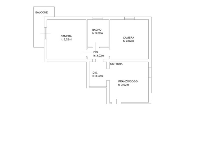
La San Quirino Immobiliare di Sassuolo propone in vendita appartamento parzialmente ristrutturato situato al primo piano di una palazzina di sole 4 unità, situato in una zona tranquilla e comoda a tutti i principali servizi. L'appartamento è composto da:  Ingresso in soggiorno con affaccio su cucinotto separato, 2 camere da letto matrimoniali, di cui una con accesso diretto sul balcone, bagno spazioso. Contattaci subito per maggiori informazioni o per prenotare una visita al numero 3402168415 o 0536/280037 oppure vieni a trovarci in piazza martiri partigiani 81.

RIF. S279

Caratteristiche principali

 Giardino: Comune
 Stato: Abitabile
 Ingresso: Condominiale
 Classe Immobile: Civile
 Cucina: Cucinotto
 Camere: 2
 Bagni: 1
 Arredamento: Parzialmente arredato
 Lati Liberi: Due, ad angolo

Planimetrie

Prestazione Energetica

 
 
 
 
 
F
 
Riscaldamento: Autonomo
Tipo riscaldamento: Radiatori
Alimentazione: Metano

Ti interessa questo immobile?

Richiedi informazioni

Ho letto, compreso e accettato i termini e condizioni.

Calcola rata del mutuo

%
70%
rata

Immobili simili

Rif: S273
Appartamento in centro a sassu

Appartamento in Vendita

Sassuolo

  • 119mq
  • 3
  • 2
 la san quirino immobiliare di sassuolo propone in vendita in una bella palazzina ordinata nel cuore di sassuolo, proponiamo in vendita un ampio appartamento al primo piano, comodo a tutt. . .
Rif: S274
Appartamento piano terra in ve

Appartamento in Vendita

Sassuolo

  • 95mq
  • 3
  • 1
Rif. S274 la san quirino immobiliare di sassuolo (piazza martiri partigiani, 81) propone in vendita appartamento al piano terra completamente ristrutturato in zona rometta. L'appartamento è co. . .
Rif: S056
Appartamento 3 locali centro a

Appartamento in Vendita

Sassuolo

  • 113mq
  • 2
  • 1
La san quirino immobiliare di sassuolo, propone in vendita appartamento vicino al centro di sassuolo, comodo a tutti i servizi principali e secondari della zona. Appartamento al secondo piano i. . .
Rif: S071
Ampio appartamento zona centro

Appartamento in Vendita

Sassuolo

  • 165mq
  • 3
  • 2
La san quirino immobiliare di sassuolo propone al piano primo di una tranquilla palazzina con ascensore, questo spazioso appartamento è perfetto per chi cerca una soluzione abitativa da perso. . .
Rif: S001
Appartamento nuovo classe a4

Appartamento in Vendita

Sassuolo

  • 135mq
  • 3
  • 2
Rif s001 appartamenti nuovi in classe a4 – ultime disponibilitÀ!in una moderna palazzina di sole 6 unità abitative, proponiamo in vendita appartamenti di nuova costruzione in classe energe. . .