Appartamento in vendita a Sassuolo

Modena (MO), Sassuolo

Descrizione immobile

RIF. S274

La San Quirino Immobiliare di Sassuolo (Piazza Martiri Partigiani, 81) propone in vendita appartamento al piano terra completamente ristrutturato in zona rometta.

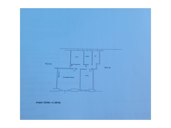
L'appartamento è composta da:

-Ingresso in soggiorno con angolo cottura 

- 3 camere da letto, di cui due matrimoniali e una singola

- Bagno spazioso

Completano la proprietà due posti auto esterni.

Spese condominiali molto ridotte

Per qualsiasi informazione potete contattarci al 3402168415 o allo 0536280037

Caratteristiche principali

 Posto auto: Si
 Stato: Ristrutturato di Recente
 Numero livelli: 3
 Classe Immobile: Civile
 Spese condominiali: 400€ annui
 Cucina: Angolo cottura
 Camere: 3
 Bagni: 1
 Piano: Piano Terra di 3° piano
 Arredamento: Parzialmente arredato

Planimetrie

Prestazione Energetica

Riscaldamento: Autonomo
Tipo riscaldamento: Radiatori
Alimentazione: Metano

Ti interessa questo immobile?

Richiedi informazioni

Ho letto, compreso e accettato i termini e condizioni.

Calcola rata del mutuo

%
70%
rata

Immobili simili

Rif: S111
Appartamento al primo piano ri

Appartamento in Vendita

Sassuolo

  • 127mq
  • 2
  • 1
Rif s111la san quirino immobiliare di sassuolo propone in vendita appartamento ristrutturato in zona quattro ponti, situato in un contesto tranquillo e senza spese condominiali, questo immobil. . .
Rif: S206
Appartamento luminoso con asce

Appartamento in Vendita

Sassuolo

  • 135mq
  • 2
  • 2
Lasciati conquistare da un’atmosfera di comfort e raffinatezza nel cuore di sassuolo. San quirino immobiliare ti propone un luminoso appartamento al quarto piano di un elegante palazzo servi. . .
Rif: S265
Immobile in edificio storico n

Appartamento in Vendita

Sassuolo

  • 207mq
  • 5
  • 2
Nel pieno centro storico, all’interno di un affascinante edificio d’epoca, proponiamo in vendita una porzione immobiliare composta da due appartamenti da ristrutturare, con una splendida t. . .
Rif: S279
Appartamento 3 locali 1° pian

Appartamento in Vendita

Sassuolo

  • 104mq
  • 2
  • 1
Rif. S279la san quirino immobiliare di sassuolo propone in vendita appartamento parzialmente ristrutturato situato al primo piano di una palazzina di sole 4 unità, situato in una zona tranqui. . .
Rif: S199
Appartamento  residenziale il

Appartamento in Vendita

Sassuolo

  • 80mq
  • 1
  • 1
La san quirino immobiliare di piazza martiri partigiani, propone in vendita in elegante contesto signorile, un appartamento situato nel cuore di sassuolo, all’interno del prestigioso comples. . .