Appartamento in vendita a Rubiera

Reggio nell'emilia (RE), Rubiera

Descrizione immobile

A Fontana di Rubiera proponiamo appartamento recentemente ristrutturato con il Bonus 110%, situato in un contesto residenziale tranquillo e comodo ai principali servizi.

L’ingresso si apre su una luminosa zona giorno con angolo cottura e accesso a un grazioso terrazzino, ideale per momenti di relax all’aperto. La zona notte, ben separata, è composta da disimpegno, due camere da letto e bagno finestrato.

Completano la proprietà cantina e garage.

Soluzione pronta da abitare, moderna ed efficiente dal punto di vista energetico, ideale per chi cerca comfort e qualità in un quartiere ben servito.

Per ulteriori informazioni, planimetrie o visite sul posto, non esitare a contattarci.
Per ulteriori informazioni contattaci al numero 352-0139557 o al 339-2126537.
Email: rubiera@sanquirinoimmobiliare.it
Ci trovi a Rubiera (RE), in Via Emilia Est 2/C.

Caratteristiche principali

 Posto auto: Box
 Stato: Buono
 Numero livelli: 1
 Ingresso: Condominiale
 Classe Immobile: Civile
 Ascensore: Si
 Spese condominiali: 1000€ annui
 Cucina: Angolo cottura
 Camere: 2
 Bagni: 1
 Piano: 2° piano di 3° piano
 Arredamento: Arredato
 Lati Liberi: Uno

L'immobile è vicino a...

Aeroporti: Hotel Continental (53.4 km)
Ospedali: Fogliani Private Hospital (16.1 km)
Hesperia Hospital Modena (17.8 km)
Centro di medicina Reggio Emilia Largo Giambellino (21.8 km)
Scuole: Scuola Primaria Marconi (2.9 km)
Scuola Primaria Marco Polo (3.7 km)
Scuola primaria campogalliano (3.9 km)
ITIS E. Fermi Succursale (Annex) (14.0 km)
Institute of Higher Education F.Selmi (14.5 km)
IIS F.Corni Liceo e Tecnico - sede Vinci (14.5 km)
Università: University of Modena and Reggio Emilia (17.9 km)
Veterinari: Ambulatorio veterinario Città di Rubiera (4.7 km)
Negozi: MS AUTO (127 m)
Forno Valentina (563 m)
CONAD SUPERSTORE (4.1 km)
Conad - Supermarket (5.2 km)
Bar e ristoranti: Bar H (1.8 km)
Da Beppe (2.1 km)
Ristorante Laghi (5.9 km)
La Baracchina (5.9 km)
Ristorante Curiel (6.5 km)
Cinema e teatri: Cinema Emiro (4.7 km)
Il cordolino di corticella (8.1 km)
Fermate autobus: Marzaglia N (7.0 km)
Cittanova Centro (8.4 km)
Stazioni treno: Rubiera (4.1 km)
Quattro Ville (12.7 km)
Parcheggi: Parcheggio Laghetti Curiel (5.9 km)
area di parcheggio Calvetro ovest (36.0 km)

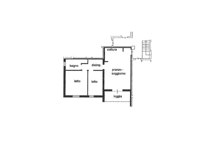
Planimetrie

Video

Prestazione Energetica

 
 
 
 
 
 
 
Riscaldamento: Autonomo
Tipo riscaldamento: Radiatori
Alimentazione: Metano

Ti interessa questo immobile?

Richiedi informazioni

Ho letto, compreso e accettato i termini e condizioni.

Calcola rata del mutuo

%
70%
rata

Immobili simili

Rif: AR007
Ar007 - appartamento bilocale

Appartamento in Vendita

Rubiera

  • 68mq
  • 1
  • 1
Se stai cercando un appartamento luminoso, funzionale e in una zona tranquilla, questo bilocale a rubiera è la soluzione ideale. Situato al primo piano di una palazzina recente del 2004, ser. . .
Rif: AR002
Ar003 - appartamento trilocale

Appartamento in Vendita

Rubiera

  • 80mq
  • 2
  • 1
A rubiera, a due passi dai servizi e dalle comodità del centro, proponiamo in vendita un appartamento accogliente e funzionale, situato al primo piano. Venduto completo di arredamento e acces. . .
Rif: AR011
Ar011 - bilocale ristrutturato

Appartamento in Vendita

Rubiera

  • 55mq
  • 1
  • 1
Bilocale ristrutturato in complesso immerso nel verdein contesto residenziale curato e circondato dal verde, proponiamo luminoso bilocale di 55 mq, posto al secondo piano con ascensore. L’imm. . .