Appartamento in vendita a Rio Saliceto

Reggio nell'emilia (RE), Rio saliceto

Visita Virtuale 3D

Descrizione immobile

Rif. annuncio: A626

In una posizione tranquilla e ben servita, ti presentiamo un ampio trilocale capace di unire eleganza moderna e accoglienza autentica.
Costruito nel 2001 e oggetto di una ristrutturazione curata in ogni dettaglio, questo appartamento regala subito la sensazione di casa.

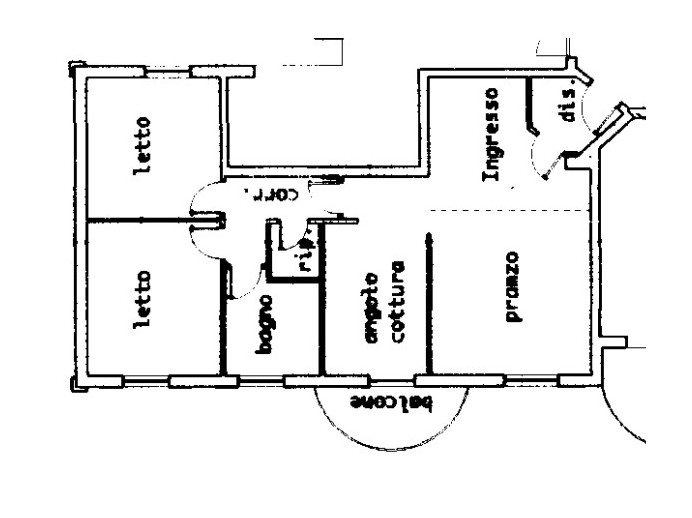
Varcando l’ingresso, un comodo disimpegno introduce alla splendida zona giorno, dominata da un soggiorno di 40 mq dove la luce naturale e gli spazi generosi creano un’atmosfera rilassata e conviviale.
La cucina separata a vista, moderna e funzionale, si apre sul balcone, perfetto per colazioni all’aperto o momenti di quiete.

La zona notte è un rifugio di tranquillità: due camere matrimoniali ampie e luminose, un bagno elegante e rinnovato, e un comodo ripostiglio adibito a lavanderia completano la parte più intima della casa.

Al piano terra, il garage di pertinenza aggiunge praticità e sicurezza alla quotidianità.

???? Dettagli che fanno la differenza:

Ristrutturazione completa con finiture moderne e materiali di qualità

Climatizzazione con doppi split inverter

Infissi in PVC con doppio vetro e imposte esterne in alluminio

Caldaia a condensazione e addolcitore dell’acqua per massimo comfort

Porte nuove e ambienti curati con gusto

Un appartamento che profuma di cura, luce e armonia, pronto ad accogliere chi desidera una casa spaziosa, raffinata e subito abitabile.

Caratteristiche principali

 Giardino: Comune
 Stato: Ristrutturato di Recente
 Numero livelli: 1
 Ingresso: Condominiale
 Classe Immobile: Civile
 Ascensore: Si
 Spese condominiali: 800€ annui
 Cucina: A vista
 Camere: 2
 Bagni: 1
 Piano: 1° piano di 3° piano
 Arredamento: Non arredato
 Lati Liberi: Tre

L'immobile è vicino a...

Aeroporti: Hotel Continental (63.1 km)
Ospedali: Ospedale San Sebastiano Correggio (6.1 km)
OTOACUSTIC Correggio - Centro Audioprotesico e Trattamento Acufeni (6.5 km)
Bianalisi - Medical Center (23.2 km)
Scuole: Scuola Elementare Anna Frank (520 m)
State Primary School St. Francis of Assisi (6.3 km)
Filippo re (6.4 km)
Cà rotta (7.2 km)
CSF - ISTITUTO PRIVATO FERMI | LICEO SPORTIVO PARITARIO | SEDE DI CARPI (7.3 km)
State Technical Institute A. Meucci Of Carpi Mo (7.6 km)
Università: University of Modena and Reggio Emilia (32.5 km)
Veterinari: Ambulatorio Veterinario Dr. Biagini (429 m)
Negozi: UP CAFE (287 m)
Panificio Veronesi (326 m)
Ecu SuperMarket (388 m)
Bhela Mini Market Sas Di Bhela Tarsem & C. (546 m)
Bar e ristoranti: La Locandiera (287 m)
La Bottega Del Pesce (348 m)
Bar Arcadia (351 m)
Bar Illogique (387 m)
Camera Cafe (501 m)
PizzeRio (735 m)
Cinema e teatri: Cinema Campagnola (6.1 km)
Space City Multisala (7.1 km)
Fermate autobus: Rio Saliceto - Incrocio Via Matteotti (951 m)
San Lodovico (2.8 km)
Stazioni treno: Carpi (8.6 km)
Novellara (9.1 km)
Parcheggi: Piazza Giosuè Carducci (789 m)
parcheggio (3.0 km)

Planimetrie

Video

Prestazione Energetica

In fase di rilascio
Riscaldamento: Autonomo
Tipo riscaldamento: Radiatori
Alimentazione: Metano

Ti interessa questo immobile?

Richiedi informazioni

Ho letto, compreso e accettato i termini e condizioni.

Calcola rata del mutuo

%
70%
rata

Immobili simili

Rif: A673
Trilocale seminuovo

Appartamento in Vendita

Rio Saliceto

  • 81mq
  • 2
  • 1
Rif. Annuncio a673 - filiale di correggiosituato al secondo ed ultimo piano di una palazzina del 2001, questo trilocale rappresenta la soluzione ideale per chi cerca tranquillità, spazi ben d. . .