Villetta a schiera in vendita a Reggio Nell'emilia
Reggio nell'emilia (RE), Reggio nell'emilia
- € 255.000
- 180mq
- 3
- 2
Descrizione immobile
Questa splendida villetta a schiera rappresenta un’occasione unica per chi desidera vivere immerso nel verde senza rinunciare alla comodità dei servizi. Situata a Bagno, a pochi passi dal Conad Superstore, offre spazi ampi, finiture di qualità e tutti i comfort moderni.
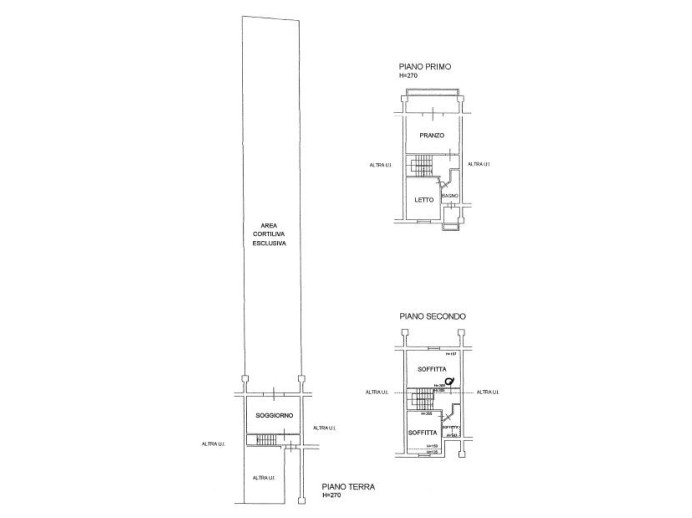
Al piano terra troviamo un garage spazioso, ideale per qualsiasi tipo di veicolo, un accogliente ingresso e una cucina abitabile con accesso diretto al giardino privato di oltre 170 mq, perfetto per momenti di relax e convivialità all’aria aperta.
Salendo al primo piano si apre una luminosa zona living con terrazzino panoramico con vista sui monti e sul giardino sottostante, una camera da letto e un bagno elegante con loggia moderna.
Il piano superiore, mansardato, accoglie due ulteriori camere da letto e un secondo bagno, offrendo spazi perfetti per la famiglia o per ospiti.
La villetta è arricchita da comfort e dettagli che fanno la differenza: climatizzatori con pompa di calore per il benessere in ogni stagione, zanzariere e inferriate per sicurezza e tranquillità, oltre a un impianto di depurazione dell’acqua che protegge gli elettrodomestici e migliora la qualità della vita quotidiana.
In sintesi, si tratta di una soluzione abitativa elegante, spaziosa e funzionale, con un grande giardino curato, in una posizione comoda e riservata: la casa ideale per chi sogna di vivere in armonia tra natura, comfort e praticità.
Per ulteriori informazioni, planimetrie o visite sul posto, non esitare a contattarci.
Per ulteriori informazioni contattaci al numero 352-0139557 o al 339-2126537.
Email: rubiera@sanquirinoimmobiliare.it
Ci trovi a Rubiera (RE), in Via Emilia Est 2/C.
Caratteristiche principali
L'immobile è vicino a...
| Aeroporti: |
Hotel Continental (54.7 km) |
|---|---|
| Ospedali: |
Fogliani Private Hospital (15.4 km) Centro di medicina Reggio Emilia Largo Giambellino (16.9 km) Hesperia Hospital Modena (17.1 km) |
| Scuole: |
Scuola Media Einstein succ.Bagno (993 m) Boiardo Primary School (1.1 km) Scuola Primaria Marco Polo (3.3 km) IISS Piero Gobetti (9.7 km) Istituto Angelo Motti - Sezione Turistico (11.3 km) Technical Institute Scaruffi-Levi-Tricolor (11.3 km) |
| Università: |
University of Modena and Reggio Emilia (15.8 km) |
| Veterinari: |
Ambulatorio Veterinario Carnevali (2.2 km) |
| Negozi: |
AMBIENTI design - Arredamento dinterni (105 m) Evicarri spa - Concessionaria IVECO (542 m) HeyConad SPESA ONLINE (1.4 km) Ecu Rubiera (1.7 km) Supermercato Coop (1.9 km) |
| Bar e ristoranti: |
ROYAL CAFE&TABACCHI di Ruozi Valentina e Monica (198 m) Ristorante Al Cantuccio Pizzeria (500 m) Risto Bar Mirella 3.0 (577 m) Bar Matrix (581 m) Risto Bar Bagno Bacone (1.0 km) TALEA 58 (1.4 km) Segafredo Zanetti Spa - Polo Reggio Emilia (2.0 km) |
| Cinema e teatri: |
Cinema Emiro (2.0 km) Il cordolino di corticella (3.7 km) |
| Fermate autobus: |
Corticella (3.6 km) San Donnino - Chiesa (4.1 km) |
| Stazioni treno: |
Rubiera (2.6 km) Bosco (10.5 km) |
| Parcheggi: |
Parcheggio (1.3 km) Parcheggio (1.7 km) |