Terratetto - terracielo in vendita a Pomponesco

Mantova (MN), Pomponesco

Visita Virtuale 3D

Descrizione immobile

San Quirino Immobiliare propone in vendita terracielo completamente ristrutturato, situato nel cuore di Pomponesco, una soluzione ideale per chi cerca una casa già sistemata, con spazi ben distribuiti e uno sfogo esterno privato.

L’immobile di circa 90 metri quadri è stato oggetto di un’importante ristrutturazione nel 2019 che ha interessato gran parte dell’abitazione:
sono stati sostituiti gli infissi, installati scuri nuovi, rifatti i pavimenti, completamente rinnovato un bagno, rifatto l’impianto elettrico e revisionato l’impianto idraulico. Il tetto, invece, è stato rifatto nella seconda metà degli anni 2000, un intervento strutturale che rappresenta un ulteriore elemento di tranquillità per chi acquista.

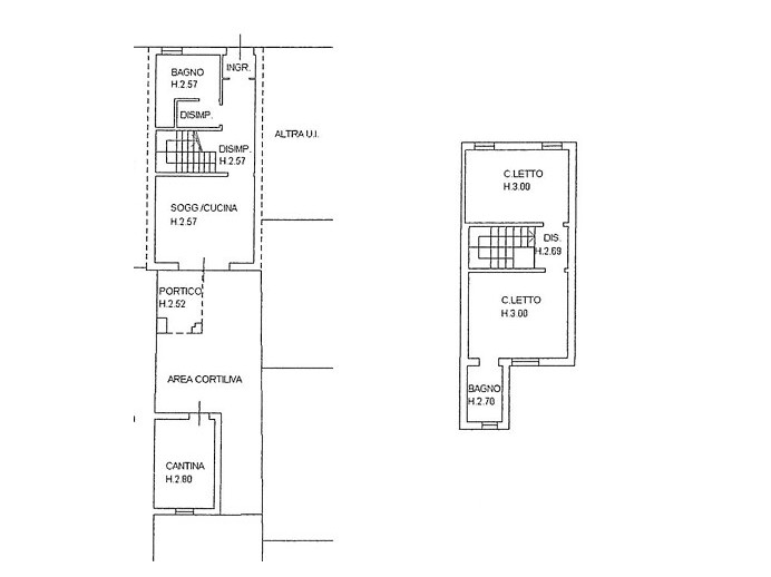
Al piano terra troviamo una zona giorno accogliente e funzionale composta da sala con angolo cottura, un ambiente conviviale e ben organizzato che si apre direttamente sul giardino sul retro di circa 140 metri quadri.
Questo spazio esterno, riservato e vivibile, è arricchito da una tettoia ideale per pranzi all’aperto e da un piccolo locale adibito a deposito, perfetto come ricovero attrezzi o spazio aggiuntivo. Sempre al piano terra sono presenti bagno e antibagno, comodi e ben distribuiti.

Salendo al piano superiore si sviluppa la zona notte con due camere da letto. Una delle due dispone di bagno privato, una caratteristica sempre più richiesta che garantisce comfort e privacy, rendendo l’abitazione adatta sia a una coppia che a una piccola famiglia.

Una casa indipendente, ristrutturata, con giardino sul retro e lavori importanti già eseguiti, pronta da abitare e perfetta per chi desidera tranquillità senza affrontare interventi impegnativi.

Caratteristiche principali

 Giardino: Privato
 Stato: Ristrutturato di Recente
 Ingresso: Indipendente
 Classe Immobile: Economica
 Cucina: Abitabile
 Camere: 2
 Bagni: 2
 Arredamento: Non arredato
 Lati Liberi: Due, paralleli

Planimetrie

Video

Prestazione Energetica

 
 
 
 
 
 
G
Riscaldamento: Autonomo
Tipo riscaldamento: Radiatori
Alimentazione: Metano

Ti interessa questo immobile?

Richiedi informazioni

Ho letto, compreso e accettato i termini e condizioni.

Calcola rata del mutuo

%
70%
rata