Terratetto - terracielo in vendita a Novi Di Modena

Modena (MO), Novi di modena

Visita Virtuale 3D

Descrizione immobile

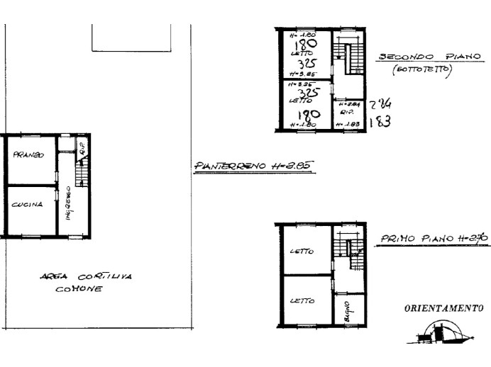
Rif. A674 Nel cuore di Novi di Modena proponiamo abitazione terra-tetto già abitabile, ideale per famiglie numerose o per chi desidera ampi spazi ben distribuiti.

L’immobile offre 4 camere da letto matrimoniali, una cucina abitabile separata, bagno funzionale e ambienti luminosi pronti da vivere fin da subito.

All’esterno troviamo un ampio giardino privato, perfetto per momenti di relax o per chi ama gli spazi verdi, oltre a doppio garage che garantisce comodità e praticità quotidiana.

Una soluzione solida, spaziosa e immediatamente disponibile, perfetta per chi cerca tranquillità senza rinunciare ai comfort.


Rif.A674

Se siete interessati all'immobile, non esitate a contattarci al numero fisso 0522-140-7801 o allo 0522-140-7920

Ci trovi in Corso Giuseppe Mazzini 28/C, nel cuore del centro storico di Correggio sotto l'orologio!

Caratteristiche principali

 Giardino: Privato
 Posto auto: Box
 Stato: Abitabile
 Numero livelli: 3
 Ingresso: Indipendente
 Classe Immobile: Economica
 Cucina: Abitabile
 Camere: 4
 Bagni: 1
 Arredamento: Parzialmente arredato
 Lati Liberi: Tre

L'immobile è vicino a...

Negozi: Supermercato Coop (371 m)
Loi Agnese & C. Snc (558 m)

Planimetrie

Video

Prestazione Energetica

 
 
 
 
 
 
G
Riscaldamento: Autonomo
Tipo riscaldamento: Radiatori
Alimentazione: Metano

Ti interessa questo immobile?

Richiedi informazioni

Ho letto, compreso e accettato i termini e condizioni.

Calcola rata del mutuo

%
70%
rata