Casa indipendente in vendita a Novi Di Modena

Modena (MO), Novi di modena

Visita Virtuale 3D

Descrizione immobile

Rif. A612 Sant’Antonio in Mercadello (Novi di Modena) – Esclusiva abitazione indipendente con ampio giardino e magazzino

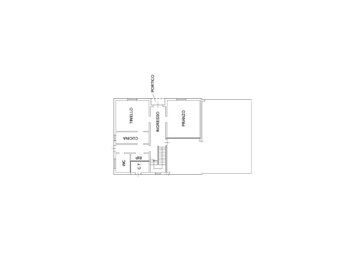
Immersa nella quiete della campagna, ma a pochi minuti dai principali servizi, proponiamo in vendita un’interessante abitazione indipendente circondata da un giardino privato di 1.800 mq e dotata di un magazzino di 300 mq, perfetto per attività artigianali, deposito o hobby.

La casa si distingue per gli ampi spazi interni, distribuiti con intelligenza e versatilità:

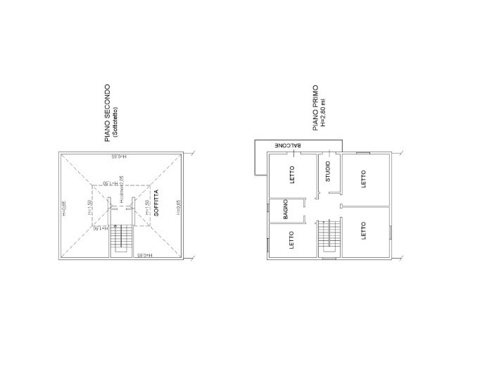
4 camere matrimoniali,

3 bagni,

2 ambienti jolly ideali come studi, stanze per ospiti, sala giochi o home office.

Una soluzione rara, perfetta per famiglie numerose, professionisti o chi cerca libertà, spazio e natura.
Privacy, indipendenza e potenziale: qui c'è tutto ciò che serve per creare la casa dei tuoi sogni.


Se siete interessati all'immobile, non esitate a contattarci al numero fisso 0522-140-7801 o allo 0522-140-7920

Ci trovi in Corso Giuseppe Mazzini 28/C, nel cuore del centro storico di Correggio sotto l'orologio!

RIF. A612

Caratteristiche principali

 Giardino: Privato
 Stato: Buono
 Numero livelli: 2
 Ingresso: Indipendente
 Classe Immobile: Economica
 Cucina: Cucinotto
 Camere: 4
 Bagni: 3
 Arredamento: Parzialmente arredato
 Lati Liberi: Quattro

L'immobile è vicino a...

Aeroporti: Hotel Continental (74.8 km)
Ospedali: X-med srl (13.7 km)
Amplifon Piazza della Conciliazione, Mirandola (14.9 km)
Centro di Salute Mentale (15.2 km)
Scuole: scuola primaria e secondaria Don Andreoli (8.3 km)
Scuola Primaria E. De Amicis (10.1 km)
CSF - ISTITUTO PRIVATO FERMI | LICEO SPORTIVO PARITARIO | SEDE DI CARPI (11.6 km)
Istituto Comprensivo Moglia - Scuola Primaria (13.3 km)
State Higher Institute G. Galilei (15.6 km)
IIS G. LUOSI (15.7 km)
Università: University of Modena and Reggio Emilia (34.1 km)
Veterinari: Papotti Elena Veterinaria (567 m)
Negozi: Mini market (81 m)
Azienda Agricola Mantovani (2.1 km)
Pasticceria La Secchia di Nigrelli Marco (4.1 km)
Bar e ristoranti: Stonehenge Pub (132 m)
Bar Ristorante Pizzeria 2 Barche (3.1 km)
Il Giglio di Dispoto Rossella e Cristiano Gilioli (4.1 km)
Cafe Noir di Ye Zengxi (4.1 km)
Bar Porta Fortuna (8.0 km)
Cinema e teatri: Cinema Teatro Ariston (10.1 km)
Circolo Ricreativo Bruno Mora - Ufficio (10.4 km)
Fermate autobus: SantAntonio Mercadello (227 m)
Ponte Pioppa (3.2 km)
Stazioni treno: Rolo Novi Fabbrico (10.1 km)
Villanova di Reggiolo (15.0 km)
Parcheggi: Parcheggio cimitero (3.9 km)
FORNO MANTOVANI Rovereto (4.2 km)

Planimetrie

Video

Prestazione Energetica

Riscaldamento: Autonomo
Tipo riscaldamento: Radiatori
Alimentazione: Metano

Ti interessa questo immobile?

Richiedi informazioni

Ho letto, compreso e accettato i termini e condizioni.

Calcola rata del mutuo

%
70%
rata

Immobili simili

Rif: A657
Villa

Casa Indipendente in Ven...

Novi Di Modena - Rovereto Sulla Secchia

  • 203mq
  • 4
  • 2
Rif. A657   in contesto residenziale tranquillo e riservato di rovereto sulla secchia, proponiamo casa completamente indipendente, caratterizzata da una particolare architettura che d. . .
Rif: A651
Abitazione bifamiliare

Casa Indipendente in Ven...

Novi Di Modena

  • 200mq
  • 3
  • 2
Rif. A651  in zona residenziale tranquilla e ben abitata di novi di modena, proponiamo in vendita casa bifamiliare che si distingue per spazi generosi, funzionalità degli ambienti e. . .
Rif: A617
Casa indipendente con ampio gi

Casa Indipendente in Ven...

Novi Di Modena

  • 290mq
  • 5
  • 3
Rif. A617 eleganza, comfort e indipendenza: la tua nuova casa ti aspetta in una zona tranquilla e riservata, proponiamo in vendita una splendida abitazione indipendente completamente rist. . .