Casa semi indipendente in vendita a Novellara

Reggio nell'emilia (RE), Novellara

Visita Virtuale 3D

Descrizione immobile

Descrizione

riferimento: AN84

casa indipendente con area cortiliva


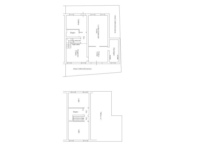
San Quirino Immobiliare di Novellara propone in vendita una casa indipendente su due livelli con area cortiliva privata. L’immobile si apre su un ampio disimpegno che conduce a un luminoso soggiorno, a un comodo ripostiglio e alla sala da pranzo; sullo stesso piano sono presenti anche il bagno e la cucina abitabile. Al primo piano un corridoio porta a due camere matrimoniali e a una terza stanza di ampie dimensioni, ideale per ricavare una terza e una quarta camera matrimoniale o per creare un’unica suite. L’immobile è stato oggetto di interventi nel 2007, con aggiornamento degli impianti, sostituzione degli infissi e rifacimento dei coppi del tetto. Una soluzione ideale per chi desidera ampi spazi, indipendenza e la possibilità di personalizzare gli ambienti in base alle proprie esigenze.

Questa soluzione è ideale per chi cerca una casa indipendente, in un contesto tranquillo e senza spese condominiali, con la possibilità di apportare qualche piccolo miglioramento per personalizzare l’ambiente.
Contattaci per ulteriori informazioni e per organizzare una visita!
DEVI VENDERE PER COMPRARE? VUOI VALORIZZARE IL TUO IMMOBILE? CI PENSIAMO NOI.

Chiamaci al numero 0522 1950053. Non dovrai far altro che comunicarci il riferimento di quest'immobile per ricevere informazioni.
Ci trovi in Piazza Unità d'Italia, 29 nel cuore del centro storico di Novellara.
Riferimento immobile A84

Caratteristiche principali

 Giardino: Privato
 Stato: Da Ristrutturare Parzialmente
 Numero livelli: 3
 Ingresso: Indipendente
 Classe Immobile: Civile
 Cucina: Abitabile
 Camere: 2
 Bagni: 2
 Arredamento: Non arredato
 Lati Liberi: Tre

Planimetrie

Video

Prestazione Energetica

 
 
 
 
 
 
G
Riscaldamento: Autonomo
Tipo riscaldamento: Radiatori
Alimentazione: Metano

Ti interessa questo immobile?

Richiedi informazioni

Ho letto, compreso e accettato i termini e condizioni.

Calcola rata del mutuo

%
70%
rata