Casa indipendente in vendita a Moglia

Mantova (MN), Moglia

Visita Virtuale 3D

Descrizione immobile

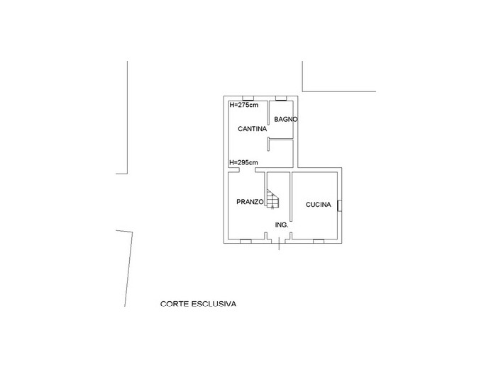
Rif. A630 Abitazione indipendente a Moglia (MN) con ampio giardino privato di 450 mq, ideale per chi desidera vivere in uno spazio riservato e tranquillo. La casa dispone di una cucina abitabile, un soggiorno separato e luminoso, due camere matrimoniali e due bagni. Il sottotetto offre ulteriori possibilità di utilizzo e personalizzazione.

A completare la proprietà, un deposito di oltre 60 mq, perfetto come garage, magazzino o spazio da dedicare alle proprie esigenze. Classe energetica E.

Un’abitazione accogliente e funzionale, pensata per chi cerca indipendenza, spazio e serenità.

Per ulteriori informazioni contattaci al numero fisso 0522-140-7801 o allo 0522-140-7920. Ci trovi in Corso Giuseppe Mazzini 28/C, nel cuore del centro storico di Correggio sotto l'orologio

Riferimento annuncio: A630
Desideri conoscere gratuitamente il valore della tua attuale abitazione?
un consulente a te dedicato ti darà tutte le informazioni che necessiti senza alcun impegno.
Chiamaci!


Caratteristiche principali

 Giardino: Privato
 Posto auto: Box
 Stato: Buono
 Numero livelli: 2
 Ingresso: Indipendente
 Classe Immobile: Medio signorile
 Cucina: Abitabile
 Camere: 2
 Bagni: 2
 Arredamento: Parzialmente arredato
 Lati Liberi: Quattro

L'immobile è vicino a...

Aeroporti: Parma Airport (83.5 km)
Ospedali: Centro Medico Polispecialistico Harmonia (14.7 km)
Poliambulatorio Quistello (15.3 km)
Ospedale Montecchi di Suzzara (18.2 km)
Scuole: Istituto Comprensivo Moglia - Scuola Primaria (4.1 km)
Scuola Primaria E. De Amicis (6.2 km)
Scuola Primaria Don Lorenzo Milani (10.8 km)
Institute of Higher Education I. S. Strozzi (14.5 km)
IIS Pietro Antonio Strozzi - sede IPA (14.7 km)
CSF - ISTITUTO PRIVATO FERMI | LICEO SPORTIVO PARITARIO | SEDE DI CARPI (20.2 km)
Università: University of Modena and Reggio Emilia (43.6 km)
Veterinari: Veterinario Elena Birba (7.3 km)
Negozi: Latteria Tullia s.c.a. (1.4 km)
Forno Davide Di Benassi Davide &C. Snc (2.6 km)
Tesori Del Gusto (2.7 km)
Cicli Molinari (3.6 km)
Bar e ristoranti: Bar Mivida Cafè (2.3 km)
Home restaurant loca (2.3 km)
Murasa Café (2.4 km)
Enoteca Osteria Dogana (2.7 km)
Ristorante Pizzeria Albergo Aquila DOro (4.0 km)
Noci Casaficio (4.5 km)
Altrove cafè (6.9 km)
Cinema e teatri: Cinema Castello Fabbrico (10.7 km)
Esterno Notte (10.7 km)
Fermate autobus: Moglia (2.3 km)
Zocca Bivio (5.7 km)
Stazioni treno: Villanova di Reggiolo (5.4 km)
Rolo Novi Fabbrico (5.6 km)
Parcheggi: Parcheggio cimitero (2.8 km)
Parcheggio Famila Moglia (3.6 km)

Planimetrie

Video

Prestazione Energetica

 
 
 
 
E
 
 
Riscaldamento: Autonomo
Tipo riscaldamento: Stufa
Alimentazione: Pellet

Ti interessa questo immobile?

Richiedi informazioni

Ho letto, compreso e accettato i termini e condizioni.

Calcola rata del mutuo

%
70%
rata

Immobili simili

Rif: A660
Abitazione indipendente

Casa Indipendente in Ven...

Moglia

  • 346mq
  • 3
  • 2
Rif. A660  in contesto tranquillo e riservato, abitazione indipendente completamente ristrutturata nel 2019, caratterizzata da ampi spazi interni ed esterni. La proprietà dispone di un. . .