Appartamento in vendita a Modena

Modena (MO), Modena

Descrizione immobile

San Quirino Formigine - cell 320.3065450 - formigine@sanquirinoimmobiliare.it 


L’OPPORTUNITÀ IDEALE PER CHI CERCA UN INVESTIMENTO SOLIDO E REDDITIZIO

Si invitano i clienti a leggere attentamente la descrizione completa.

A Baggiovara, in contesto verde e riservato ma perfettamente collegato a Modena e Formigine, proponiamo in vendita un appartamento posto al secondo piano di una piccola palazzina priva di spese condominiali.
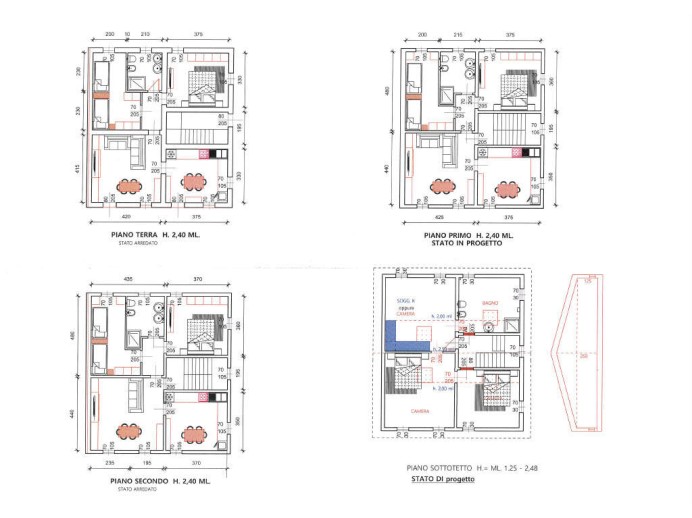
L’immobile è composto da ingresso su soggiorno, cucina abitabile, disimpegno notte, camera matrimoniale, camera singola e bagno. Completano la proprietà un posto auto privato e una soffitta.

Soluzione particolarmente interessante come fonte di reddito, grazie alla immediata vicinanza all’Ospedale di Baggiovara.

L’appartamento fa parte di un fabbricato di sole tre unità abitative, tutte disponibili alla vendita e tutte da ristrutturare.

Per l’intero edificio la nostra agenzia ha attivato una convenzione dedicata, tramite i nostri partner del credito, che consente un acquisto con mutuo e ristrutturazione. Progetto e capitolato sono già stati predisposti da impresa edile e geometra.

Modalità di acquisto.
La banca eroga un mutuo fino al 100% del valore di acquisto dell’immobile e fino all’80% del capitale destinato alla ristrutturazione, con lavori completati entro sei mesi dal rogito notarile. Il prezzo di acquisto allo stato attuale è pari a euro 90.000 per ciascuna unità. Per ogni appartamento è prevista una spesa di ristrutturazione entro euro 55.000.

Gestione dei lavori.
Gli interventi saranno affidati a un’unica impresa edile, selezionata, affidabile e incaricata congiuntamente dai tre futuri proprietari.

Risultato finale.
L’acquisto si conclude con un immobile completamente ristrutturato. Ogni aspetto è stato studiato per garantire un’operazione chiara e sicura. All’acquirente è richiesto esclusivamente di fornire la documentazione necessaria per l’ottenimento del mutuo e di scegliere finiture e pavimenti secondo le proprie preferenze.

Nota organizzativa.
Per prassi, le visite agli immobili vengono effettuate solo dopo un appuntamento conoscitivo presso i nostri uffici.

Valutazioni e cambi casa.
Disponibilità per consulenze su vendita e acquisto.


San Quirino Immobiliare sede di Formigine, ci trovi via Giardini Nord n. 4 

visita il nostro sito www.sanquirinoimmobiliare.it

Caratteristiche principali

 Numero livelli: 1
 Cucina: Abitabile
 Camere: 2
 Bagni: 1
 Piano: 2° piano di 2° piano

Planimetrie

Video

Prestazione Energetica

 
 
 
 
 
 
G
Riscaldamento: Autonomo
Alimentazione: Metano

Ti interessa questo immobile?

Richiedi informazioni

Ho letto, compreso e accettato i termini e condizioni.

Calcola rata del mutuo

%
70%
rata

Immobili simili

Rif: MO01
Trilocale in buonissime condiz

Appartamento in Vendita

Modena

  • 113mq
  • 2
  • 1
San quirino immobiliare propone in vendita: trilocale in buonissime condizioni zona centrale a modena.  la zona è estremamente comoda per raggiungere il centro storico della città, così. . .
Rif: F 166
Via barozzi elegante appartame

Appartamento in Vendita

Modena

  • 128mq
  • 2
  • 1
San quirino formigine - cell 320. 3065450 - formigine@sanquirinoimmobiliare. It nel cuore del quartiere san faustino, una delle zone più apprezzate di modena per qualità della vita e vici. . .
Rif: MO02
Bilocale moderno a modena zona

Appartamento in Vendita

Modena

  • 55mq
  • 2
  • 1
Hai sempre desiderato un casa di proprietà e vorresti abbandonare definitivamente l'affitto? stai cercando un immobile da investimento che sia facilmente rivendibile e che possa avere un. . .
Rif: F105B
Baggiovara - app. To al p. Pri

Appartamento in Vendita

Modena

  • 70mq
  • 1
  • 1
San quirino formigine - cell 320. 3065450 - formigine@sanquirinoimmobiliare. It l’acquisto perfetto per chi cerca la prima casasi invitano i clienti a leggere attentamente la descrizione. . .
Rif: AR022
Ar022 - appartamento con 2 cam

Appartamento in Vendita

Modena - Marzaglia Nuova

  • 95mq
  • 2
  • 1
Proponiamo in vendita luminoso appartamento situato in una zona comoda a tutti i servizi, ideale per famiglie o per chi cerca spazi ben distribuiti e funzionali. La posizione permette di raggi. . .