Villetta a schiera in vendita a Maranello

Modena (MO), Maranello

Descrizione immobile

La San Quirino Immobiliare di Maranello propone in vendita, in una delle zone più ambite di Maranello, dove tranquillità e qualità della vita si incontrano,  splendida villa a schiera di testa, capace di accogliere e far sentire subito “a casa”.

Circondata da un ampio giardino privato, perfetto per momenti di relax all’aria aperta, cene estive o per chi desidera uno spazio sicuro e verde per la famiglia, questa abitazione regala indipendenza e riservatezza difficili da trovare.

Costruita negli anni ’80 e mantenuta con cura, la casa si presenta in buono stato e valorizzata dall’elegante faccia a vista, che ne esalta il carattere solido e senza tempo.

L’ingresso accompagna in un luminoso soggiorno, cuore della casa, ideale per condividere momenti con amici e familiari. La cucina abitabile, separata, invita a vivere la quotidianità con comodità, mentre il bagno al piano terra aggiunge praticità agli spazi.

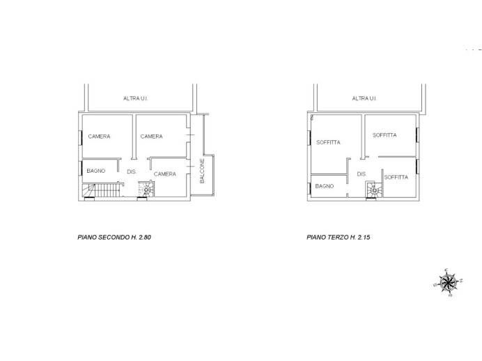
Al primo piano si sviluppa la zona notte, pensata per il comfort: tre camere da letto accoglienti e un bagno, perfetti per soddisfare le esigenze di tutta la famiglia.

Salendo ancora, il piano soffitte offre spazi versatili, con altezze che permettono di immaginare nuove stanze, uno studio riservato, una zona relax o ambienti dedicati alle proprie passioni.

Al piano seminterrato, un ampio garage e la cantina completano la proprietà, garantendo tutto lo spazio necessario per organizzare al meglio ogni esigenza.

Una casa che non è solo un immobile, ma un luogo dove costruire ricordi, crescere e vivere ogni giorno con serenità.

Per chi deve anche vendere il proprio immobile, offriamo un servizio completo che include:

notaio di fiducia,

tecnici geometri/ingegneri termotecnici di fiducia,

virtual tour immersivi,

servizi fotografici professionali con riprese aeree,

assistenza dedicata in ogni fase della vendita.

Le visite vengono effettuate solo dopo un incontro conoscitivo in agenzia, così da garantire un percorso chiaro, qualificato e professionale.

Riferimenti:
San Quirino Immobiliare Maranello
Tel: 0536 28 00 46  - 389 79 40 233
Email: maranello@sanquirinoimmobiliare.it
Ufficio: Maranello (MO) via Claudia n.70

Caratteristiche principali

 Giardino: Privato
 Stato: Da Ristrutturare
 Ingresso: Indipendente
 Classe Immobile: Civile
 Cucina: Abitabile
 Camere: 3
 Bagni: 3
 Arredamento: Non arredato
 Lati Liberi: Tre

Planimetrie

Prestazione Energetica

 
 
 
 
E
 
 
Riscaldamento: Autonomo
Tipo riscaldamento: Radiatori
Alimentazione: Metano

Ti interessa questo immobile?

Richiedi informazioni

Ho letto, compreso e accettato i termini e condizioni.

Calcola rata del mutuo

%
70%
rata

Immobili simili

Rif: MA016
Villa a schiera di nuova costr

Villetta A Schiera in Ve...

Maranello - Pozza

  • 288mq
  • 3
  • 3
La san quirino immobiliare propone in una delle zone più richieste di maranello,  splendida villetta a schiera centrale di nuova costruzione, con possibilità di personalizzazione d. . .