Appartamento in vendita a Maranello

Modena (MO), Maranello

Descrizione immobile

La San Quirino Immobiliare di Maranello , propone in vendita ampio e silenzioso quadrilocale a Gorzano .

Se cerchi una soluzione abitativa spaziosa, immersa nel verde e senza le incombenze delle spese condominiali, questo appartamento a Gorzano è ciò che fa per te.

Posto al secondo ed ultimo piano di un piccolo contesto di poche unità, ti regala tutta la tranquillità e la riservatezza che desideri.
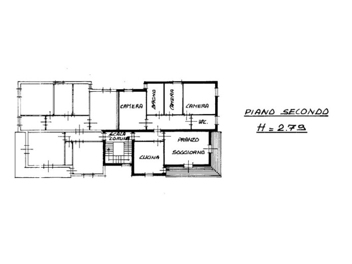
Appena varcata la soglia ti accoglie una grande zona giorno, luminosa e perfetta per i momenti in famiglia o con gli amici. La cucina abitabile con balcone permette di vivere al meglio gli spazi, tra colazioni all’aperto e pranzi conviviali.

La zona notte è ben distribuita: tre camere da letto ampie e funzionali, ideali per famiglie numerose o per chi desidera una stanza studio, e due bagni, che garantiscono praticità e comfort quotidiano.

Un valore aggiunto è la mansarda al piano superiore: proprio sopra l’appartamento, può essere collegata internamente e diventare uno spazio in più da personalizzare come studio, area relax, palestra o stanza per gli hobby.

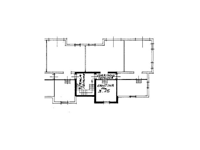
Al piano terra troverai un garage di generose dimensioni, una cantina utile per ogni esigenza e, non da ultimo, un orto ad uso esclusivo, un privilegio raro che ti permetterà di coltivare i tuoi prodotti freschi o creare un angolo verde personale.

Il tutto immerso in un contesto condominiale con ampie aree verdi, dove regnano quiete e natura, perfetto per chi desidera vivere in un ambiente sereno senza rinunciare alla comodità dei servizi vicini.

Per maggiori informazioni o per fissare una visita, contattaci o passa a trovarci in agenzia: San Quirino Immobiliare Maranello.

Via Claudia 70 - Maranello (MO)

0536 280046

Caratteristiche principali

 Stato: Da Ristrutturare
 Ingresso: Condominiale
 Classe Immobile: Civile
 Spese condominiali: 200€ annui
 Cucina: Abitabile
 Camere: 3
 Bagni: 2
 Piano: 2° piano di 3° piano
 Arredamento: Non arredato
 Lati Liberi: Tre

L'immobile è vicino a...

Aeroporti: Hotel Continental (33.9 km)
Ospedali: Hesperia Hospital Modena (15.1 km)
Fogliani Private Hospital (17.0 km)
Villa Pineta S.R.L. (21.1 km)
Scuole: Scuola Elementare Capoluogo (1.5 km)
Scuola Primaria Stradi (1.6 km)
Scuole Elementari Gianni Rodari (2.4 km)
Istituto di Istruzione Superiore A. Ferrari (2.7 km)
Metis Lezioni Private a Sassuolo (9.3 km)
ITCG BAGGI (11.1 km)
Università: University of Modena and Reggio Emilia (17.7 km)
Veterinari: Ambulatorio Veterinario Città di Maranello (1.7 km)
Negozi: Forno di Barbara (215 m)
Salumificio F.lli Guerzoni - La Salumeria dei Guerzoni - Spaccio (326 m)
Supermercato Coop (1.7 km)
MINI Market (1.8 km)
Bar e ristoranti: Ristorante Da Anna (145 m)
Bar Sport M.d.e. S.r.l. (193 m)
LAlternativo (299 m)
Pizzeria Big Ben gorzano (344 m)
Bar Hamburgheria Bio 52 (2.3 km)
Quikoffi Maranello (2.3 km)
Cinema e teatri: Enzo Ferrari Auditorium (2.1 km)
Cinema Teatro Astoria (7.4 km)
Fermate autobus: Gorzano 1 (236 m)
Via Don Cavedoni (1.5 km)
Stazioni treno: Formigine (8.5 km)
Fiorano (9.6 km)
Parcheggi: Parcheggio (1.7 km)
Maranello (1.7 km)

Planimetrie

Prestazione Energetica

 
 
 
 
 
 
G
Riscaldamento: Autonomo
Tipo riscaldamento: Radiatori
Alimentazione: Metano

Ti interessa questo immobile?

Richiedi informazioni

Ho letto, compreso e accettato i termini e condizioni.

Calcola rata del mutuo

%
70%
rata

Immobili simili

Rif: MA001
Nuova costruzione a pozza

Appartamento in Vendita

Maranello

  • 135mq
  • 3
  • 2
La san quirino immobiliare propone in vendita l'ultimo appartamento al piano terra in un complesso residenziale di nuova costruzione, situato a pozza di maranello, in una zona tranquilla e ben. . .
Rif: MA022
Ampio quadrilocale con taverna

Appartamento in Vendita

Maranello

  • 195mq
  • 3
  • 2
La san quirino immobiliare di maranello propone in posizione strategica e comoda ai principali servizi,  appartamento di ampie metrature, ideale per chi cerca spazi comodi e ambienti vers. . .
Rif: MA033
Trilocale con terrazzo

Appartamento in Vendita

Maranello - Pozza

  • 98mq
  • 2
  • 1
La san quirino immobiliare di maranello propone in vendita nella tranquilla e servita frazione di pozza di maranello, in posizione riservata all’interno di una strada chiusa, proponiamo appa. . .
Rif: MA026
Trilocale con ascensore

Appartamento in Vendita

Maranello

  • 84mq
  • 2
  • 1
La san quirino di maranello propone in una delle zone più ricercate di maranello, a due passi dal centro ma in contesto riservato e silenzioso, proponiamo luminoso appartamento al primo piano. . .
Rif: MA004
Trilocale con terrazzo, 2 bagn

Appartamento in Vendita

Maranello - Pozza

  • 130mq
  • 2
  • 2
La san quirino immobiliare di maranello propone in vendita l'ultimo appartamento al 3 ed ultimo piano in un complesso residenziale di nuova costruzione, situato a pozza di maranello, in una zo. . .