Appartamento in vendita a Luzzara

Reggio nell'emilia (RE), Luzzara

Visita Virtuale 3D

Descrizione immobile

San Quirino Immobiliare - Sede di Guastalla, propone in vendita appartamento in Luzzara, in costesto condominiale vicino al centro ed i servizi del paese.
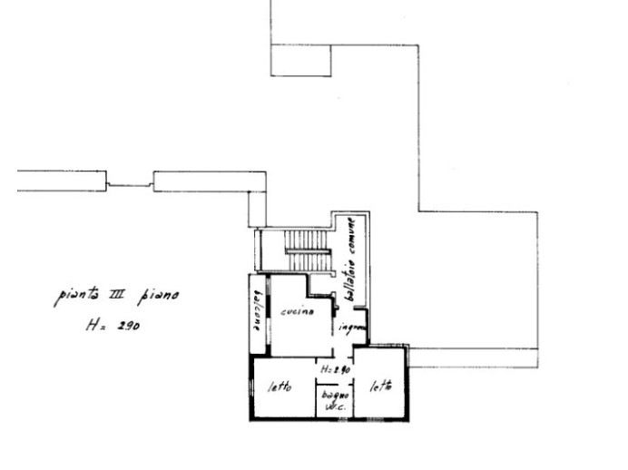
La soluzione è ubicata al terzo ed ultimo piano del condominio.

L'immobile è così composto:

varcata la porta d'ingresso, troviamo il disimpegno che porta alla cucina abitabile con accesso al balcone, con vista sul giardino d'ingresso.
Proseguendo nel disimpegno troviamo due camere da letto e a completare la soluzione un servizio completo.

La metratura totale dell'appartamento è di 78mq e le condizioni interne sono da riqualificare a piacimento.
L'immobile è dotato di autorimessa da 15mq .

Per una valutazione gratuita della tua abitazione o per maggiori informazioni su come valorizzare il tuo immobile, contattaci senza impegno.
Il nostro consulente dedicato sarà lieto di assisterti e fornirti tutte le informazioni necessarie.

Prenota ora una visita chiamando al numero: 0522 1309888 o vieni a trovarci presso il nostro ufficio in Via Gonzaga 8/E, nel cuore del centro storico di Guastalla.
RIFERIMENTO IMMOBILE: AG415.

Caratteristiche principali

 Giardino: Comune
 Posto auto: Rimessa
 Stato: Abitabile
 Numero livelli: 1
 Ingresso: Condominiale
 Classe Immobile: Civile
 Ascensore: Si
 Spese condominiali: 1300€ annui
 Cucina: Abitabile
 Camere: 2
 Bagni: 1
 Piano: 3° piano di 3° piano
 Lati Liberi: Due, ad angolo

L'immobile è vicino a...

Aeroporti: Parma Airport (45.0 km)
Ospedali: Arca Del Fiume (6.8 km)
Amplifon Via Europa, Suzzara (7.8 km)
Ospedale Montecchi di Suzzara (8.1 km)
Scuole: Primary School Giovanni Pascoli (583 m)
Istituto Manzoni (6.2 km)
IIS Bertrand Russell Guastalla (6.5 km)
Scuola Elementare (6.7 km)
Institute of Higher Education I. S. Strozzi (7.1 km)
Scuola primaria di Dosolo (10.6 km)
Università: University of Modena and Reggio Emilia (55.9 km)
Veterinari: Ambulatorio Veterinario Rolli E Zanetti (380 m)
Negozi: Panificio La Torre Di Benassi Nicola E C. S.n.c. (372 m)
Eredi Cilloni Sas (431 m)
Membro HERBALIFE NUTRITION Carlo Valerio & Barbara Arista (523 m)
Famila Luzzara (686 m)
Conad - Supermarket (1.1 km)
Bar e ristoranti: Bar Fortuna (264 m)
Caffetteria Al Gambar (345 m)
Caffè Ai Portici (398 m)
Tigelleria grimaldi (437 m)
Pizzeria Ristorante da Nino (488 m)
Pizzeria Quadrifoglio (682 m)
Casa mia (4.4 km)
Cinema e teatri: Cinema Politeama (7.0 km)
Cinema Teatro Comunale di Dosolo (11.0 km)
Fermate autobus: Luzzara - Inc. Via Matteotti (685 m)
Luzzara (1.2 km)
Stazioni treno: Tagliata (4.1 km)
Parcheggi: Parcheggio dei Pankla (670 m)
PARCHEGGIO EUROFORESI (2.2 km)

Planimetrie

Video

Prestazione Energetica

 
 
 
 
 
 
G
Riscaldamento: Autonomo
Tipo riscaldamento: Radiatori
Alimentazione: Metano

Ti interessa questo immobile?

Richiedi informazioni

Ho letto, compreso e accettato i termini e condizioni.

Calcola rata del mutuo

%
70%
rata