Casa indipendente in vendita a Guastalla

Reggio nell'emilia (RE), Guastalla

Visita Virtuale 3D

Descrizione immobile

San Quirino Immobiliare, sede di Guastalla, propone un’occasione unica a Pieve di Guastalla, in una delle zone più richieste dai nostri clienti.

La soluzione, completamente ristrutturata di recente, è inserita in un contesto residenziale di sole villette ben abitate, sinonimo di tranquillità, ordine e qualità della vita. Un ambiente ideale per chi desidera indipendenza senza rinunciare alla comodità dei servizi.

La ristrutturazione ha interessato impianto elettrico e idraulico, pavimenti, porte interne, oltre all’installazione della caldaia a condensazione, rendendo l’abitazione pronta da vivere senza ulteriori interventi.

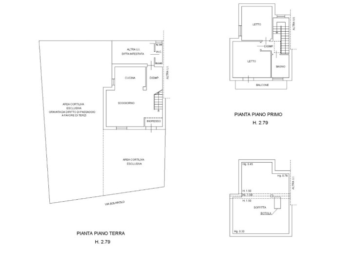
Attraverso l’accesso privato al giardino di proprietà si entra direttamente nell’abitazione, dove veniamo accolti da un soggiorno di ampie dimensioni, uno spazio luminoso e perfettamente vivibile.
La cucina in open space, separata solo da un caratteristico arco, mantiene continuità e armonia tra gli ambienti, garantendo funzionalità e personalità.

Proseguendo lungo il corridoio al piano terra si accede comodamente all’autorimessa di 13 mq, attualmente adibita a ripostiglio, magazzino, dispensa e lavanderia, soluzione pratica e versatile per ogni esigenza organizzativa. A completare il piano troviamo un bagno di servizio.

Salendo il vano scala raggiungiamo il disimpegno notte che conduce a due camere da letto matrimoniali, entrambe spaziose e ben distribuite, di cui una dotata di balcone, oltre a un bagno comodo e funzionale da poco ristrutturato completamente.

L’immobile è inoltre dotato di pannelli fotovoltaici, inferiate al piano terra, zanzariere, doppi vetri, climatizzatore, tenda esterna automatica e pozzo, elementi che ne aumentano comfort, sicurezza ed efficienza energetica.

Una proposta completa, ideale per chi cerca una casa indipendente, in un contesto richiesto e con caratteristiche già pronte per essere vissute.

Per comprare la casa dei tuoi sogni devi vendere? Per una valutazione gratuita della tua abitazione o per maggiori informazioni su come valorizzare il tuo immobile, contattaci senza impegno.
Il nostro consulente dedicato sarà lieto di assisterti e fornirti tutte le informazioni necessarie.

Prenota ora una visita chiamando al numero: 0522 1309888 o vieni a trovarci presso il nostro ufficio in Via Gonzaga 8/E, nel cuore del centro storico di Guastalla.

RIFERIMENTO IMMOBILE: AG433.

Caratteristiche principali

 Posto auto: Box
 Stato: Buono
 Ingresso: Indipendente
 Classe Immobile: Civile
 Cucina: Abitabile
 Camere: 2
 Bagni: 2
 Lati Liberi: Tre

Planimetrie

Video

Prestazione Energetica

 
 
 
 
E
 
 
Riscaldamento: 0
Tipo riscaldamento: Radiatori
Alimentazione: Metano

Ti interessa questo immobile?

Richiedi informazioni

Ho letto, compreso e accettato i termini e condizioni.

Calcola rata del mutuo

%
70%
rata

Immobili simili

Rif: AG260
Ampia area edificabile in zona

Casa Indipendente in Ven...

Guastalla

  • 2350mq
San quirino immobiliare di guastalla propone in vendita edificio da ristrutturare con area pertinenziale di ampia metratura. L'area si estende su una superficie di circa 2. 350 metri quadrati e. . .
Rif: AG360
Soluzione indipendente vicino

Casa Indipendente in Ven...

Guastalla

  • 166mq
  • 3
  • 2
Stai cercando una soluzione indipendente vicina a tutti i servizi?abbiamo quello che fa per te!clicca sul virtual tour per vedere l'immobile direttamente da casa tua!!san quirino immobiliare d. . .
Rif: AG443
Casa indipendente con giardino

Casa Indipendente in Ven...

Guastalla - San Rocco

  • 91mq
  • 2
  • 1
San quirino immobiliare – sede di guastalla propone un’occasione dal prezzo particolarmente interessante, ideale per chi desidera indipendenza e tranquillità immerso nel verde, tra guasta. . .
Rif: AG431
Casa indipendente vicino al ce

Casa Indipendente in Ven...

Guastalla

  • 203mq
  • 3
  • 3
San quirino immobiliare – sede di guastalla propone in vendita soluzione indipendente a ridosso del centro storico di guastalla, ideale per chi desidera la comodità dei servizi unita alla t. . .
Rif: AG177
Rustico con ampio giardino

Casa Indipendente in Ven...

Guastalla

  • 270mq
  • 3
  • 2
San quirino immobiliare propone in vendita una casa indipendente con ampio giardino in vendita a guastalla (san girolamo)immersa nel verde della campagna guastallese, in una delle zone più tr. . .