Appartamento in vendita a Guastalla

Reggio nell'emilia (RE), Guastalla

Visita Virtuale 3D

Descrizione immobile

San Quirino Immobiliare – sede di Guastalla, propone in vendita questa occasione.

In zona residenziale tranquilla e comoda ai principali servizi, proponiamo appartamento trilocale posto al primo piano senza ascensore di un contesto degli anni ’90, riservato e composto da poche unità abitative, mantenuto in ottime condizioni generali.

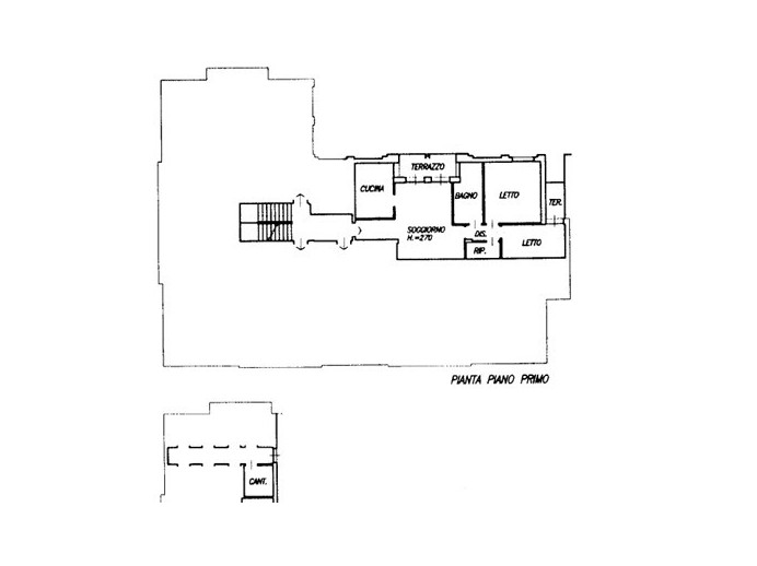
L’immobile, di 81 mq commerciali, si compone di soggiorno luminoso con accesso al terrazzo, cucina separata abitabile, disimpegno notte, bagno di ampie dimensioni, ripostiglio, camera matrimoniale e camera singola con accesso al secondo terrazzo.

Completano la proprietà garage di 14 mq al piano terra e spazi comuni curati.

Le spese condominiali sono contenute, grazie al numero limitato di unità e alla gestione semplice del fabbricato.

Soluzione ideale per chi cerca un appartamento pronto da abitare, in contesto ordinato, riservato e ben abitato.

Per una valutazione gratuita della tua abitazione o per maggiori informazioni su come valorizzare il tuo immobile, contattaci senza impegno.
Il nostro consulente dedicato sarà lieto di assisterti e fornirti tutte le informazioni necessarie.

Prenota ora una visita chiamando al numero: 0522 1309888 o vieni a trovarci presso il nostro ufficio in Via Gonzaga 8/E, nel cuore del centro storico di Guastalla.

RIFERIMENTO IMMOBILE: AG417.

Caratteristiche principali

 Giardino: Comune
 Posto auto: Box
 Stato: Buono
 Numero livelli: 1
 Ingresso: Condominiale
 Classe Immobile: Civile
 Spese condominiali: 500€ annui
 Cucina: Abitabile
 Camere: 2
 Bagni: 1
 Piano: 1° piano di 2° piano
 Arredamento: Non arredato
 Lati Liberi: Uno

L'immobile è vicino a...

Aeroporti: Parma Airport (41.2 km)
Ospedali: Arca Del Fiume (2.0 km)
Ospedale Montecchi di Suzzara (11.2 km)
Amplifon Via Europa, Suzzara (13.4 km)
Scuole: Scuola Elementare (2.6 km)
Scuola Primaria “San Martino” (2.6 km)
IIS Bertrand Russell Guastalla (2.6 km)
Scuola Elementare (3.6 km)
Institute of Higher Education I. S. Strozzi (10.6 km)
Istituto Manzoni (11.8 km)
Università: University of Modena and Reggio Emilia (54.7 km)
Veterinari: Centro Veterinario Nizzola di Galimberti Dr. Riccardo (1.9 km)
Negozi: AMICIBAU SNC (1.2 km)
Oleodinamica Pneumatica Guastallese Srl (1.8 km)
中式生魚片餐廳 (3.2 km)
Forno Ghini Di Ghini Simone E C. S.N.C. (3.2 km)
Supermercato Eurospar Guastalla (3.3 km)
Bar e ristoranti: Ristorante Il Cantuccio (420 m)
Bar Corallo (S.N.C.) (1.3 km)
Enjoy Caffè (1.8 km)
Pizzeria da Cuba (1.9 km)
Ristorante Pizzeria San Valentino (2.0 km)
Bar Sport Le Piscine (2.6 km)
Caffè Bahia (3.8 km)
Cinema e teatri: Cinema Teatro Comunale di Dosolo (7.9 km)
Cinecentrum Gualtieri (9.5 km)
Fermate autobus: Guastalla (3.4 km)
Guastalla (3.4 km)
Stazioni treno: Tagliata (974 m)
Parcheggi: Parcheggio Ospedale (1.8 km)
Parcheggio Piazza Galilei (2.8 km)

Planimetrie

Video

Prestazione Energetica

 
 
 
 
 
F
 
Riscaldamento: Autonomo
Tipo riscaldamento: Radiatori
Alimentazione: Metano

Ti interessa questo immobile?

Richiedi informazioni

Ho letto, compreso e accettato i termini e condizioni.

Calcola rata del mutuo

%
70%
rata

Immobili simili

Rif: AG376
Appartamento al primo piano in

Appartamento in Vendita

Guastalla

  • 99mq
  • 2
  • 1
San quirino immobiliare - sede di guastalla propone in esclusiva un elegante appartamento situato nella zona più ricercata del paese, più precisamente in località nizzola, rinomata per la s. . .
Rif: AG406
Trilocale al primo piano con a

Appartamento in Vendita

Guastalla - Tagliata

  • 99mq
  • 2
  • 1
San quirino immobiliare di guastalla propone in vendita ampio trilocale al primo piano con ascensore. In una tranquilla palazzina costruita nei primi anni 2000, situata nella frazione di taglia. . .
Rif: Ag368
Appartamento con 3 camere da l

Appartamento in Vendita

Guastalla

  • 109mq
  • 3
  • 2
San quirino immobiliare di guastalla propone in vendita ampio appartamento situato nella ricercata zona pieve, comoda ai principali servizi del paese.   questa spaziosa soluzione, caratter. . .
Rif: AG383
Appartamento con autorimessa i

Appartamento in Vendita

Guastalla

  • 106mq
  • 2
  • 1
San quirino immobiliare è lieta di presentare questa soluzione abitativa situata nel cuore di guastalla, a pochi passi dal centro storico e comoda a tutti i principali servizi offerti dalla c. . .
Rif: AG344
Trilocale in centro storico

Appartamento in Vendita

Guastalla

  • 95mq
  • 2
  • 1
San quirino immobiliare di guastalla, propone in vendita ampio trilocale in centro storico. In posizione centrale e servita, proponiamo in vendita un ampio e luminoso trilocale situato al terzo. . .