Appartamento duplex in vendita a Guastalla

Reggio nell'emilia (RE), Guastalla

Visita Virtuale 3D

Descrizione immobile

San Quirino Immobiliare, sede di Guastalla, è lieta di proporre in vendita una piccola perla nel cuore del centro storico, situata in un contesto residenziale caratterizzato da poche unità abitative.

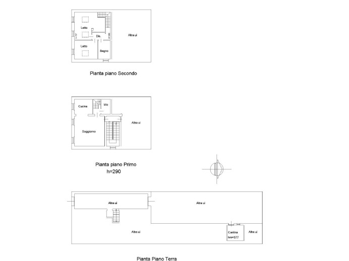
L'appartamento, ristrutturato nel 2006, si trova al primo e ultimo piano e si accede direttamente alla zona giorno, valorizzata da travi a vista.
Adiacente e separata, troviamo la cucina abitabile. Completa il piano un comodo bagno, a servizio della zona giorno.

Al piano superiore, tramite una comoda scala, si sviluppa la zona notte, disposta su due livelli, che consente di separare gli spazi per garantire una privacy ottimale e il massimo comfort; In questa area si trovano due camere da letto, una delle quali dotata di una cabina armadio, Il piano notte si completa con un ampio bagno.

Al piano terra, è presente un giardino comune che conduce alla cantina, ideale come area di stoccaggio o, in questo caso, come lavanderia.

L'intera soluzione si estende su una superficie totale di 106 mq e, grazie alla sua struttura contenuta e al numero ridotto di unità, le spese condominiali sono particolarmente basse.

Prenota ora una visita chiamando al numero: 0522 1309888 o vieni a trovarci presso il nostro ufficio in Via Gonzaga 8/E, nel cuore del centro storico di Guastalla.

RIFERIMENTO IMMOBILE: AG438.

Caratteristiche principali

 Giardino: Comune
 Stato: Buono
 Numero livelli: 2
 Ingresso: Condominiale
 Classe Immobile: Civile
 Spese condominiali: 150€ annui
 Cucina: Semi abitabile
 Camere: 2
 Bagni: 2
 Piano: 1° piano di 2° piano
 Arredamento: Non arredato
 Lati Liberi: Due, ad angolo

Planimetrie

Video

Prestazione Energetica

 
 
 
 
 
F
 
Riscaldamento: Autonomo
Tipo riscaldamento: Radiatori
Alimentazione: Metano

Ti interessa questo immobile?

Richiedi informazioni

Ho letto, compreso e accettato i termini e condizioni.

Calcola rata del mutuo

%
70%
rata