Villa bifamiliare in vendita a Gualtieri

Reggio nell'emilia (RE), Gualtieri

Descrizione immobile

In nuovo quartiere residenziale a Gualtieri, in zona tranquilla e verde, proponiamo villette di nuova costruzione in classe energetica avanzata, caratterizzate da linee moderne, ampi spazi esterni privati e finiture di qualità superiore.

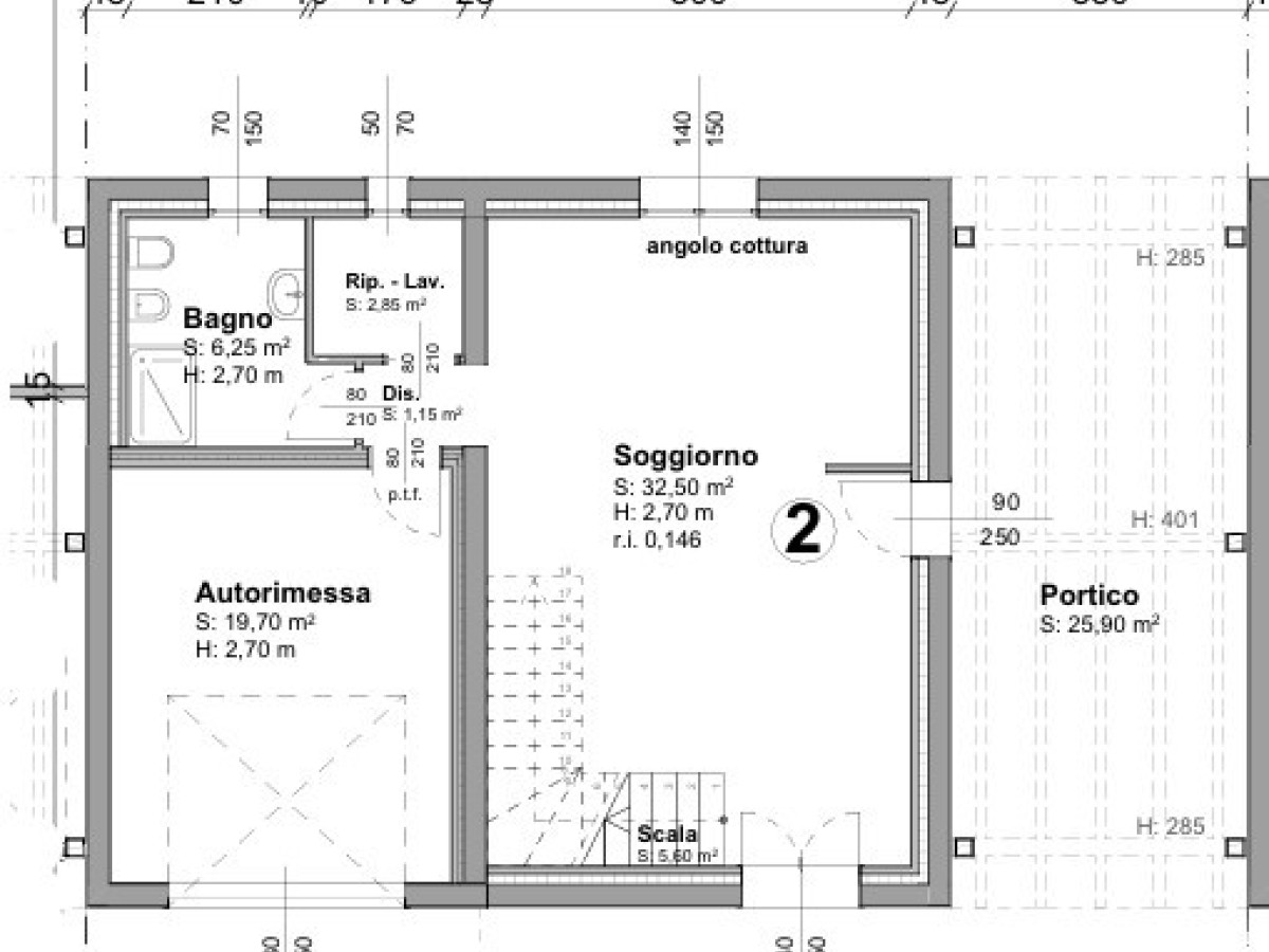
Le abitazioni si sviluppano su due livelli e offrono una zona giorno luminosa e open-space, con soggiorno e cucina affacciati sul portico coperto, ideale per pranzi all’aperto. Al piano terra sono presenti anche un bagno finestrato, un pratico ripostiglio/lavanderia e autorimessa collegata all’abitazione.

Al piano primo troviamo la zona notte, composta da tre camere matrimoniali e doppie, un secondo bagno finestrato, ripostiglio e balcone (a seconda della tipologia). Gli ambienti sono ampi, lineari e facilmente arredabili, pensati per soddisfare le esigenze di famiglie e coppie che cercano comfort e indipendenza.

Ogni villetta dispone di giardino privato, recinzioni già realizzate, pavimentazioni esterne in autobloccanti e accessi pedonali e carrabili indipendenti.

DOTAZIONI PRINCIPALI:

Struttura antisismica

Impianto di riscaldamento a pavimento

Pompa di calore Daikin

Predisposizione climatizzazione zona giorno e notte

Serramenti in PVC con zanzariere

Scuretti esterni in alluminio

Portoncino blindato

Sanitari Ideal Standard / Pozzi Ginori, rubinetteria Fantini

Tetto a quattro falde con impianto fotovoltaico integrato

Soluzione ideale per chi desidera una casa moderna, efficiente e con spazi ben distribuiti, in un contesto residenziale in crescita.

Per una valutazione gratuita della tua abitazione o per maggiori informazioni su come valorizzare il tuo immobile, contattaci senza impegno.
Il nostro consulente dedicato sarà lieto di assisterti e fornirti tutte le informazioni necessarie.

Prenota ora una visita chiamando al numero: 0522 1309888 o vieni a trovarci presso il nostro ufficio in Via Gonzaga 8/E, nel cuore del centro storico di Guastalla.

Riferimento Immobile: AG420.

Caratteristiche principali

 Giardino: Privato
 Posto auto: Box
 Stato: Nuovo
 Numero livelli: 2
 Ingresso: Indipendente
 Classe Immobile: Civile
 Nuova Costruzione: Si
 Cucina: A vista
 Camere: 3
 Bagni: 2
 Arredamento: Non arredato
 Lati Liberi: Tre

L'immobile è vicino a...

Aeroporti: Parma Airport (33.9 km)
Ospedali: Arca Del Fiume (5.7 km)
Casa della Salute (13.2 km)
C U P Poviglio (14.0 km)
Scuole: IIS Bertrand Russell Guastalla (5.0 km)
Scuola Elementare (5.2 km)
Scuola Elementare (6.9 km)
IIS San Giovanni Bosco (10.4 km)
Scuola Primaria A. Cantoni (13.4 km)
Institute of Higher Education I. S. Strozzi (17.6 km)
Università: University of Modena and Reggio Emilia (54.9 km)
Veterinari: Ambulatorio veterinario Dott.ssa Alice Gorzanelli (1.0 km)
Negozi: Panificio (639 m)
E.Market (1.3 km)
Sigma Di Gualtieri Garibaldi (1.5 km)
Famila Superstore Gualtieri (3.8 km)
Bar e ristoranti: Acquedotto (836 m)
Bar Elisa (953 m)
Pizzeria Franco & Miki 2 (1.2 km)
Caffe La Corte Snack (1.3 km)
LA CARBONA srl - Ristorante Impronte di Luca (1.7 km)
Pizzeria Del Corso (1.8 km)
My Cafe (3.4 km)
Cinema e teatri: Cinecentrum Gualtieri (3.7 km)
Teatro del FIUME (6.3 km)
Fermate autobus: Gualtieri - Tempo Rock (2.3 km)
San Giacomo (5.3 km)
Stazioni treno: Gualtieri (1.3 km)
Pieve Saliceto (3.1 km)
Parcheggi: Via Pieve, 133 Parking (2.7 km)
Parcheggio Eurospin (4.8 km)

Planimetrie

Prestazione Energetica

 
 
 
 
 
 
 
Riscaldamento: Autonomo
Tipo riscaldamento: A pavimento
Alimentazione: Metano

Ti interessa questo immobile?

Richiedi informazioni

Ho letto, compreso e accettato i termini e condizioni.

Calcola rata del mutuo

%
70%
rata

Immobili simili

Rif: AG412
Ampia casa bifamiliare con gia

Villa Bifamiliare in Ven...

Gualtieri

  • 219mq
  • 3
  • 2
In trattativa in una delle zone più tranquille e ricercate di gualtieri, proponiamo in vendita una splendida casa bifamiliare con ampio giardino privato, perfetta per chi desidera una so. . .