Villetta a schiera in vendita a Gualtieri
Reggio nell'emilia (RE), Gualtieri
- € 179.000
- 152mq
- 3
- 2
Visita Virtuale 3D
Descrizione immobile
San Quirino Immobiliare, sede di Guastalla, propone in vendita una villa a schiera situata in un quartiere residenziale tranquillo e adiacente a un parco pubblico.
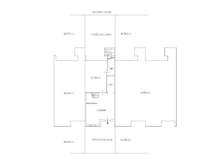
L'accesso alla proprietà avviene tramite un ingresso pedonale o un cancello automatico che conduce all'autorimessa con basculante motorizzata.
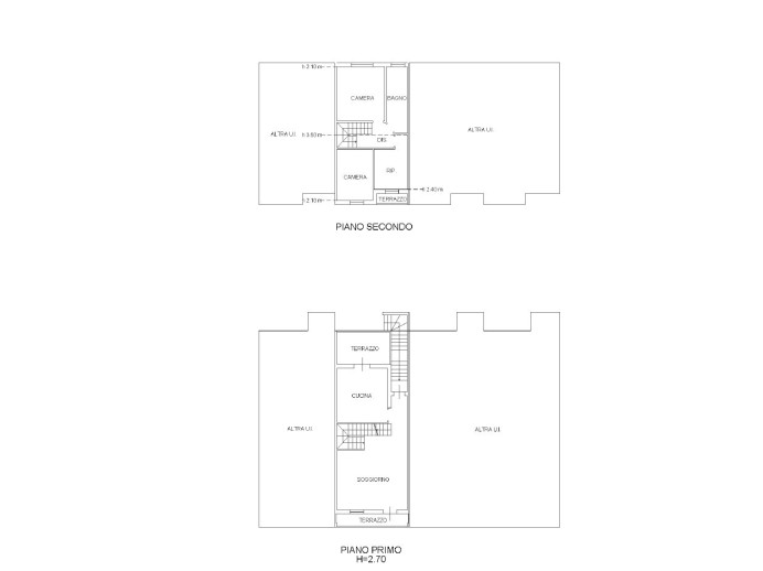
Il piano abitativo principale si apre con un'ampia cucina abitabile, dotata di porta finestra per l'accesso a un terrazzo di generose dimensioni.
Il soggiorno, separato dalla cucina, è caratterizzato da un'ottima luminosità grazie all'esposizione a sud e alla presenza di un balcone; un camino completa la zona giorno, rendendo l'ambiente accogliente.Il reparto notte comprende tre camere da letto, di cui una matrimoniale e due singole, oltre a un bagno comodo dedicato.Al piano terra è presente un ulteriore locale adibito a taverna, ideale come zona living, palestra o area svago. Questo livello include un secondo bagno, l'accesso diretto al garage e un'uscita sul giardino privato, perfetto per momenti di relax all'aperto.
Un'opportunità unica per chi è alla ricerca di un’abitazione esclusiva nel cuore di Santa Vittoria.
Per una valutazione gratuita della tua abitazione o per maggiori informazioni su come valorizzare il tuo immobile, contattaci senza impegno. Il nostro consulente dedicato sarà lieto di assisterti e fornirti tutte le informazioni necessarie.
Prenota ora una visita chiamando al numero: 0522 1309888 o vieni a trovarci presso il nostro ufficio in Via Gonzaga 8/E, nel cuore del centro storico di Guastalla.
RIFERIMENTO IMMOBILE: AG426.
L'accesso alla proprietà avviene tramite un ingresso pedonale o un cancello automatico che conduce all'autorimessa con basculante motorizzata.
Il piano abitativo principale si apre con un'ampia cucina abitabile, dotata di porta finestra per l'accesso a un terrazzo di generose dimensioni.
Il soggiorno, separato dalla cucina, è caratterizzato da un'ottima luminosità grazie all'esposizione a sud e alla presenza di un balcone; un camino completa la zona giorno, rendendo l'ambiente accogliente.Il reparto notte comprende tre camere da letto, di cui una matrimoniale e due singole, oltre a un bagno comodo dedicato.Al piano terra è presente un ulteriore locale adibito a taverna, ideale come zona living, palestra o area svago. Questo livello include un secondo bagno, l'accesso diretto al garage e un'uscita sul giardino privato, perfetto per momenti di relax all'aperto.
Un'opportunità unica per chi è alla ricerca di un’abitazione esclusiva nel cuore di Santa Vittoria.
Per una valutazione gratuita della tua abitazione o per maggiori informazioni su come valorizzare il tuo immobile, contattaci senza impegno. Il nostro consulente dedicato sarà lieto di assisterti e fornirti tutte le informazioni necessarie.
Prenota ora una visita chiamando al numero: 0522 1309888 o vieni a trovarci presso il nostro ufficio in Via Gonzaga 8/E, nel cuore del centro storico di Guastalla.
RIFERIMENTO IMMOBILE: AG426.
Caratteristiche principali
Giardino: Privato
Posto auto:
Box
Stato: Buono
Ingresso: Indipendente
Classe Immobile: Civile
Cucina: Abitabile
Camere: 3
Bagni: 2
Arredamento: Non arredato
Lati Liberi: Due, paralleli