Appartamento duplex in vendita a Fiorano Modenese

Modena (MO), Fiorano modenese

Visita Virtuale 3D

Descrizione immobile

San Quirino Formigine - cell 320.3065450 - formigine@sanquirinoimmobiliare.it 


Sei alla ricerca di un ampio appartamento in un contesto elegante e riservato, dove ogni dettaglio è pensato per il tuo comfort?

A Spezzano di Fiorano Modenese ti proponiamo in esclusiva un appartamento su due livelli, situato al 2° e ultimo piano di una palazzina servita da ascensore, all’interno di un raffinato residence realizzato nella seconda metà degli anni ’90.

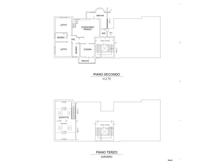
Al primo livello, l’appartamento accoglie con un ampio living luminoso con terrazzo, cucina abitabile con balcone, disimpegno notte, due spaziose camere matrimoniali e due bagni con finestre, garantendo comodità e funzionalità.

Al piano superiore, una mansarda di 55 mq offre uno spazio versatile, perfetto come terza camera, ambiente hobby o smart work, secondo le tue esigenze.

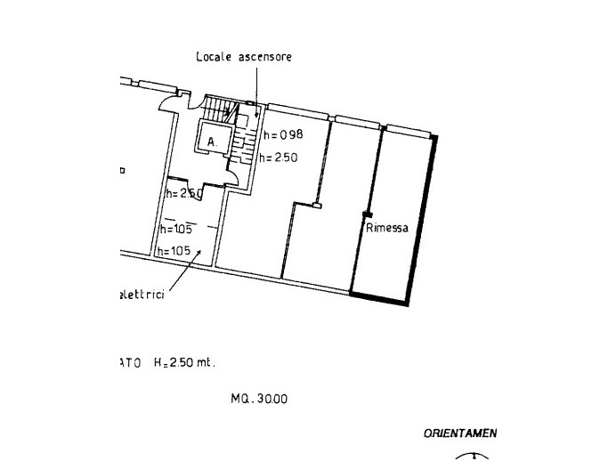
Completano la proprietà soffitta, ripostiglio e doppia autorimessa al piano semi-interrato. Gli impianti sono a norma, gli infissi con doppio vetro e le finiture risultano ancora gradevoli e accoglienti; la caldaia è stata recentemente sostituita, assicurando comfort immediato.

La posizione riservata e tranquilla, vicina a parchi e scuole, è un vero plus per chi desidera vivere in un contesto elegante senza rinunciare alla comodità dei servizi.

L’appartamento è disponibile da subito: una soluzione pronta per accoglierti e rendere speciale la tua vita quotidiana.
Contattaci subito per organizzare una visita e scoprire tutto ciò che questo appartamento a Spezzano può offrirti.


Nota: per offrirti un servizio su misura, le visite agli immobili vengono organizzate solo dopo una consulenza preliminare in studio.

San Quirino Immobiliare sede di Formigine, ci trovi via Giardini Nord n. 4 

Visita il nostro sito www.sanquirinoimmobiliare.it

Caratteristiche principali

 Posto auto: Box
 Stato: Abitabile
 Numero livelli: 2
 Ingresso: Condominiale
 Classe Immobile: Signorile
 Ascensore: Si
 Spese condominiali: 1800€ annui
 Cucina: Abitabile
 Camere: 2
 Bagni: 2
 Piano: 2° piano di 3° piano
 Arredamento: Non arredato
 Lati Liberi: Tre

Planimetrie

Video

Prestazione Energetica

 
 
 
 
 
F
 
Riscaldamento: Autonomo
Tipo riscaldamento: Radiatori
Alimentazione: Metano

Ti interessa questo immobile?

Richiedi informazioni

Ho letto, compreso e accettato i termini e condizioni.

Calcola rata del mutuo

%
70%
rata

Immobili simili

Rif: SP40-7
Attico di pregio in palazzina

Appartamento Duplex in V...

Fiorano Modenese

  • 190mq
  • 3
  • 2
San quirino formigine - cell 320. 3065450 - formigine@sanquirinoimmobiliare. It nel cuore di un quartiere residenziale tra i più ricercati, prende forma in anteprima un complesso residenzi. . .