Appartamento in vendita a Fabbrico

Reggio nell'emilia (RE), Fabbrico

Visita Virtuale 3D

Descrizione immobile

San Quirino immobiliare di Novellara propone in vendita Quadrilocale a due passi dal centro di fabbrico.

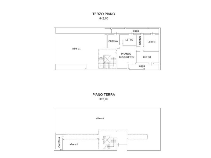
La soluzione si trova in un contesto residenziale tranquillo e ben servito, situato al terzo ed ultimo piano di una palazzina costruita nei primi anni 2000, dotata di ascensore.

L’appartamento si distingue per una distribuzione funzionale degli spazi. La zona giorno accoglie una spaziosa e accogliente sala, perfetta per i momenti di relax, con accesso diretto alla terrazza che dona luminosità all’ambiente. La cucina, separata abitabile, garantisce praticità senza rinunciare alla convivialità con accesso diretto alla seconda terrazza.

Nella zona notte troviamo tre camere da letto confortevoli, ideali per una famiglia o per chi desidera uno spazio aggiuntivo per studio o ospiti. Completa la soluzione un bagno ben organizzato, dotato di tutti i comfort.

L’appartamento rappresenta un’ottima opportunità per chi cerca un'abitazione funzionale e ben distribuita, in una zona ben collegata e vicina ai principali servizi.

a completare la proprietà cantina e garage

Un’ottima soluzione per chi desidera vivere in centro, con tutti i servizi a portata di mano!
Contattaci per ulteriori informazioni e per organizzare una visita!
DEVI VENDERE PER COMPRARE? VUOI VALORIZZARE IL TUO IMMOBILE? CI PENSIAMO NOI.

Chiamaci al numero 0522 1950053. Non dovrai far altro che comunicarci il riferimento di quest'immobile per ricevere informazioni.
Ci trovi in Piazza Unità d'Italia,29, nel cuore del centro storico di Novellara.
Riferimento immobile AN106

Caratteristiche principali

 Giardino: Comune
 Posto auto: Rimessa
 Stato: Buono
 Numero livelli: 3
 Ingresso: Condominiale
 Classe Immobile: Civile
 Ascensore: Si
 Spese condominiali: 650€ annui
 Cucina: Abitabile
 Camere: 3
 Bagni: 1
 Arredamento: Non arredato
 Lati Liberi: Due, paralleli

Planimetrie

Video

Prestazione Energetica

In fase di rilascio
Riscaldamento: Autonomo
Tipo riscaldamento: Radiatori
Alimentazione: Metano

Ti interessa questo immobile?

Richiedi informazioni

Ho letto, compreso e accettato i termini e condizioni.

Calcola rata del mutuo

%
70%
rata

Immobili simili

Rif: AN94
Trilocale in centro a fabbrico

Appartamento in Vendita

Fabbrico

  • 120mq
  • 2
  • 1
San quirino immobiliare di novellara propone in vendita a fabbrico: ampio trilocale posto al secondo piano, ideale per chi è alla ricerca di spazi comodi e ben distribuiti. L’appartamen. . .
Rif: AN111
Trilocale al primo piano

Appartamento in Vendita

Fabbrico

  • 96mq
  • 2
  • 1
Riferimento: an111proponiamo in vendita appartamento situato in zona centrale a fabbrico, comodo a tutti i principali servizi e alle attività del paese. L'immobile si trova al primo pia. . .
Rif: AN108
Trilocale con autorimessa senz

Appartamento in Vendita

Fabbrico

  • 76mq
  • 2
  • 1
San quirino immobiliare – sede di novellara propone in vendita un’interessante soluzione situata nel centro di fabbrico, comoda a tutti i principali servizi e alle vie di collegamento del. . .
Rif: AN97
Trilocale al piano rialzato

Appartamento in Vendita

Fabbrico

  • 70mq
  • 2
  • 1
San quirino immobiliare di novellara propone in vendita trilocale in zona centralein zona centrale a fabbrico, proponiamo in vendita un appartamento situato al piano rialzato. L’immobile è c. . .
Rif: AN72
Trilocale in centro

Appartamento in Vendita

Fabbrico

  • 102mq
  • 2
  • 1
San quirino immobiliare di novellara propone in vendita splendido trilocale nel cuore di fabbrico. Situato al primo piano di uno stabile senza spese condominiali, questo trilocale offre spazi. . .