Appartamento indipendente in vendita a Dosolo

Mantova (MN), Dosolo

Visita Virtuale 3D

Descrizione immobile

Correggioverde – Bilocale con ingresso indipendente in contesto riservato

In zona residenziale tranquilla e ben abitata, proponiamo in vendita bilocale al piano terra, inserito in un contesto decoroso e privato, edificato nei primi anni 2000.

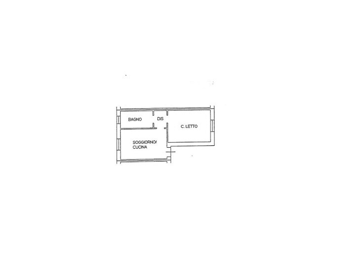
L’immobile, caratterizzato dall’ingresso indipendente, garantisce privacy e autonomia, ed è composto da soggiorno con angolo cottura, disimpegno, bagno di generose dimensioni e camera matrimoniale.

L’abitazione si presenta in buone condizioni ed è dotata di infissi in legno con doppi vetri, scuri in legno, inferriate e zanzariere, elementi che assicurano comfort e sicurezza.

Soluzione ideale sia come prima abitazione che come investimento a reddito.

Disponibilità immediata.

Il prezzo si riferisce al solo appartamento. Possibilità di acquistare uno o più garage a parte al prezzo di Euro 15.000 ciascuno.

CONSULENTE DEDICATO 
PIETRI ALESSANDRO
3398521204 0375930000 
Viadana, P.zza Solferino 13
viadana@sanquirinoimmobiliare.it

Caratteristiche principali

 Stato: Buono
 Classe Immobile: Civile
 Cucina: Angolo cottura
 Camere: 1
 Bagni: 1
 Arredamento: Non arredato
 Lati Liberi: Due, paralleli

Planimetrie

Prestazione Energetica

 
 
 
 
 
 
G
Riscaldamento: Autonomo
Tipo riscaldamento: Radiatori
Alimentazione: Metano

Ti interessa questo immobile?

Richiedi informazioni

Ho letto, compreso e accettato i termini e condizioni.

Calcola rata del mutuo

%
70%
rata