Appartamento in vendita a Cremona

Cremona (CR), Cremona

Visita Virtuale 3D

Descrizione immobile

In una delle zone più richieste e centrali di Cremona, Porta Romana, proponiamo in vendita un elegante bilocale situato al primo piano all’interno di un contesto condominiale curato e immerso nel verde, ideale per chi cerca tranquillità senza rinunciare alla comodità dei servizi.

L’appartamento, recentemente ristrutturato, si presenta in ottime condizioni ed è pronto da abitare, completo di arredo: la soluzione perfetta per chi desidera entrare senza pensieri.

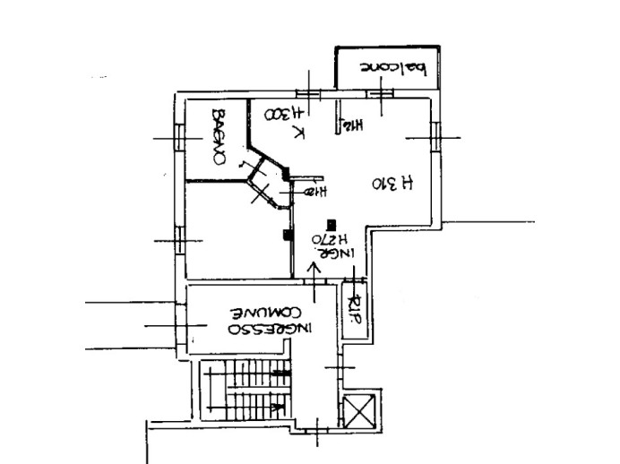
L’ingresso si apre su un ampio e luminoso soggiorno con cucina a vista, ambiente moderno e funzionale, perfetto per vivere la casa in modo conviviale.
La zona notte è composta da una spaziosa camera matrimoniale, affiancata da un bagno ben rifinito. Completa la proprietà un comodo ripostiglio, sempre più raro e prezioso.

Dotazioni e comfort:

Porta blindataSerramenti con doppi vetriZanzariereAria condizionataRiscaldamento autonomo

Punto di forza unico: doppio garage, un vero valore aggiunto in una zona così centrale, dove il parcheggio rappresenta spesso una criticità.

Una soluzione ideale sia per abitazione principale che per investimento, grazie alla posizione strategica e allo stato impeccabile dell’immobile.

Pronto da vivere: basta portare le valigie.

Caratteristiche principali

 Giardino: Comune
 Stato: Ristrutturato di Recente
 Numero livelli: 1
 Ingresso: Condominiale
 Classe Immobile: Civile
 Spese condominiali: 800€ annui
 Cucina: A vista
 Camere: 1
 Bagni: 1
 Piano: Rialzato di 3° piano
 Arredamento: Parzialmente arredato
 Lati Liberi: Due, ad angolo

Planimetrie

Video

Prestazione Energetica

 
 
 
 
E
 
 
Riscaldamento: Autonomo
Tipo riscaldamento: Radiatori
Alimentazione: Metano

Ti interessa questo immobile?

Richiedi informazioni

Ho letto, compreso e accettato i termini e condizioni.

Calcola rata del mutuo

%
70%
rata