Terratetto - terracielo in vendita a Correggio

Reggio nell'emilia (RE), Correggio

Visita Virtuale 3D

Descrizione immobile

Affascinante Casa Storica in Centro a Correggio

Rif. A575

Nel cuore del centro storico di Correggio, in via del Filatojo 20, proponiamo in vendita una storica e spaziosa casa di 264 mq commerciali.

L’immobile offre ambienti generosi e una disposizione interna versatile, ideale sia per una famiglia numerosa sia per chi desidera spazi ampi e luminosi.

Composizione e spazi

Piano Terra: l’ingresso si apre su un lungo corridoio che conduce a un appartamento indipendente. Qui, sulla sinistra, troviamo un ampio ambiente unico che ospita un salotto e una camera da letto nello stesso spazio, con un cucinotto e un bagno separati sempre lungo il corridoio.

Piano Seminterrato: una cantina di 149 mq, rappresenta uno spazio unico e versatile, perfetto come taverna, area hobby o zona di deposito.

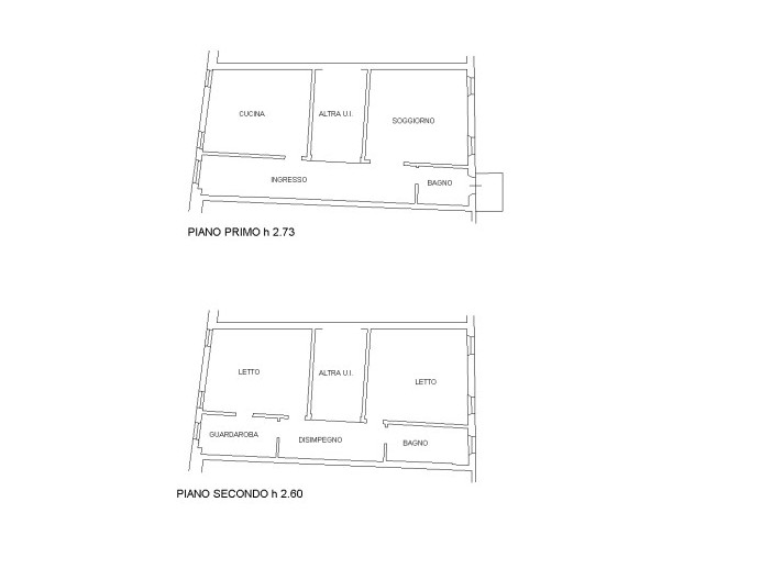
Primo Piano (Zona Giorno): salendo dalle scale si accede alla grande cucina abitabile, ideale per momenti di convivialità, uno studio, un ampio salotto e un bagno moderno, servito anche da un pratico balcone esterno.

Secondo Piano (Zona Notte): qui troviamo due spaziose camere matrimoniali, una cabina armadio generosa e un bagno completo, Piano Mansardato: la soffitta offre un’ulteriore camera o studio e una lavanderia, completati da un pratico solaio.

Spazi Esterni
A completare la proprietà, un giardino privato di 52 mq (conteggiato al 10% nella superficie commerciale), perfetto per momenti di relax all’aperto.

Condizioni e Ristrutturazione
La casa si presenta in ottime condizioni, con doppi vetri e pavimenti rinnovati sia nella zona giorno che nella zona notte. Gli interventi di ristrutturazione più significativi sono stati effettuati tra la fine degli anni ’90 e i primi anni 2000, con ulteriori migliorie nel 2005 e nel 2015.

Per maggiori informazioni non esitare a contattarci al numero 0522-140-7920

Caratteristiche principali

 Giardino: Privato
 Stato: Buono
 Numero livelli: 4
 Ingresso: Indipendente
 Classe Immobile: Economica
 Cucina: Abitabile
 Camere: 3
 Bagni: 3
 Arredamento: Parzialmente arredato
 Lati Liberi: Due, paralleli

L'immobile è vicino a...

Aeroporti: Hotel Continental (61.5 km)
Ospedali: Bianalisi - Medical Center (18.9 km)
C.T.R. Therapy Rehabilitation Center Srl (20.5 km)
Centro di medicina Reggio Emilia Largo Giambellino (21.1 km)
Scuole: Filippo re (607 m)
State Primary School St. Francis of Assisi (1.4 km)
Scuola Primaria Statale G. Rodari - Cantona (1.5 km)
Scuola Primaria Antonio Allegri (2.2 km)
State Technical Institute A. Meucci Of Carpi Mo (9.3 km)
Team ZeroC (9.6 km)
Università: University of Modena and Reggio Emilia (24.7 km)
Veterinari: Lugli Dr.ssa Silvia Medico Veterinario (717 m)
Negozi: Run Specialyst di Gardini Carlo (231 m)
Panificio SIMONE - Prodotti da forno dolci e salati (331 m)
Il Punto Sigma Di Correggio Carlo V (707 m)
KAUL ASIAN STORE DI LAL MADAN (739 m)
Bar e ristoranti: Cafè Teatro (208 m)
Piadineria Butega Romagnola Correggio (452 m)
Caffè La Rocca (602 m)
Caffetteria Mazzini (709 m)
Trattoria Tre Spade (721 m)
Caffe Mini Bar di Vale & Andre (744 m)
Pizzeria Napulé (763 m)
Cinema e teatri: Cinepiù - The cinema of Correggio (1.3 km)
Space City Multisala (9.1 km)
Fermate autobus: Correggio (1.2 km)
Correggio - Espansione Sud Inc. Via D. Chiesa (2.1 km)
Stazioni treno: S. Tomaso (8.5 km)
Vezzola (9.5 km)
Parcheggi: Parcheggio interrato ligabue (608 m)
Parcheggio Via Conciapelli (1.1 km)

Planimetrie

Video

Prestazione Energetica

 
 
 
 
 
 
G
Riscaldamento: Autonomo
Tipo riscaldamento: Radiatori
Alimentazione: Metano

Ti interessa questo immobile?

Richiedi informazioni

Ho letto, compreso e accettato i termini e condizioni.

Calcola rata del mutuo

%
70%
rata

Immobili simili

Rif: A574
Terratetto unifamiliare ristru

Terratetto - Terracielo ...

Correggio - Budrio

  • 195mq
  • 2
  • 2
 porzione di casa ristrutturata con ampio giardino privato – budrio di correggiorif: a574in contesto tranquillo e residenziale, proponiamo in vendita una porzione di casa indipendente compl. . .
Rif: A607
Terracielo in centro.

Terratetto - Terracielo ...

Correggio

  • 164mq
  • 2
  • 2
Grazioso terra-cielo ristrutturato nel cuore del centro storicorif. A607 in pieno centro storico proponiamo grazioso terra-cielo indipendente disposto su tre livelli, ristrutturato negli anni. . .
Rif: A530
Terracielo da ristrutturare in

Terratetto - Terracielo ...

Correggio - Correggio Città

  • 164mq
  • 3
  • 2
Terracielo/terratetto al grezzo da ristrutturare in via munari 5rif. A530san quirino immobiliare propone in vendita terracielo indipendente situato nel cuore della città. L'immobile, al grezz. . .