Porzione di casa in vendita a Concordia Sulla Secchia

Modena (MO), Concordia sulla secchia

Visita Virtuale 3D

Descrizione immobile

In una tranquilla zona di prima periferia a Concordia sulla Secchia, San Quirino Immobiliare Mirandola propone in vendita una porzione di casa libera su tre lati, ideale per chi desidera spazi ampi, indipendenza e un contesto sereno.
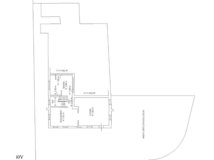
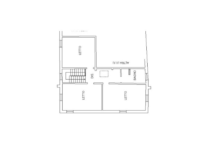
L’abitazione si sviluppa su tre livelli:

- al piano terra l’ingresso accoglie in un soggiorno luminoso con angolo cottura, disimpegno e un ampio bagno;

- al primo piano la zona notte offre tre spaziose camere matrimoniali e un secondo bagno;

- al piano superiore una soffitta, accessibile da botola, completa la proprietà.


All’esterno, un giardino privato regala uno spazio perfetto per momenti di relax, mentre una cantina aggiunge comodità e funzionalità.


Grazie all’ingresso indipendente e all’attuale contratto di locazione regolare, questa soluzione rappresenta un ottimo investimento, ma anche un futuro rifugio per chi sogna una casa accogliente, pronta ad adattarsi a ogni esigenza.

Contattaci oggi stesso per ulteriori informazioni o per organizzare una visita!

Caratteristiche principali

 Giardino: Privato
 Stato: Buono
 Numero livelli: 3
 Ingresso: Indipendente
 Classe Immobile: Civile
 Cucina: Angolo cottura
 Camere: 3
 Bagni: 2
 Arredamento: Parzialmente arredato
 Lati Liberi: Tre

L'immobile è vicino a...

Aeroporti: Bologna Guglielmo Marconi Airport (87.2 km)
Ospedali: Amplifon Piazza della Conciliazione, Mirandola (9.7 km)
Centro Medico Polispecialistico Harmonia (10.0 km)
X-med srl (15.3 km)
Scuole: scuola primaria e secondaria Don Andreoli (4.6 km)
State Higher Institute G. Galilei (10.3 km)
IIS G. LUOSI (10.4 km)
scuola (10.4 km)
Primary School Dante Alighieri (11.1 km)
Istituto Comprensivo Moglia - Scuola Primaria (12.1 km)
Università: University of Modena and Reggio Emilia (40.0 km)
Negozi: Giardiniere di Prandini Franco (598 m)
Dal Pastin (1.4 km)
Famila Concordia Sulla Secchia (1.4 km)
Ettori Luca- Macchine da Cucire (1.6 km)
Forno Borelli (1.7 km)
Bar e ristoranti: La Bella Sfilza - Cooperativa Sociale (661 m)
Bar Vintage (1.6 km)
Bar concordia (1.6 km)
GUSTO - Autentica Pizzeria (1.6 km)
Caffetteria Tiffany (1.8 km)
Bar Sole (1.8 km)
Cottocrudo di Senese Luca - Pizzeria ristorante gastronomia Da Francio (2.0 km)
Cinema e teatri: Lux Cinema Theater (11.4 km)
Piazza Fellini (15.9 km)
Fermate autobus: Concordia (2.0 km)
Vallalta (3.4 km)
Stazioni treno: Quistello (9.9 km)
S. Rocco Mantovano (11.2 km)
Parcheggi: Parcheggio della Palestra Comunale (1.9 km)
Parcheggio dellIstituto Comprensivo Sergio Neri (2.0 km)

Planimetrie

Video

Prestazione Energetica

 
 
 
 
 
 
G
Riscaldamento: Autonomo
Tipo riscaldamento: Radiatori
Alimentazione: Metano

Ti interessa questo immobile?

Richiedi informazioni

Ho letto, compreso e accettato i termini e condizioni.

Calcola rata del mutuo

%
70%
rata